Immobilier Ouest Var
Var-Immo > Cogolin > Appartement > SFN-1674647-7

280 000 € Appartement T2 Cogolin

Pièces: 2
Surface: 46 m2 *
Référence: SFN-1674647-7
iad France - Jessica Alessandrini (06 73 75 66 47) vous propose : Appartement T2 à vendre à Cogolin – Résidence de standing avec piscine
Découvrez une résidence d’exception à Cogolin, au cOEur du Golfe de Saint-Tropez, offrant des appartements haut de gamme avec grande terrasse, garage sécurisé et prestations modernes. Située dans un quartier résidentiel calme, à proximité du centre-ville, cette résidence RE 2020 conjugue confort, sécurité et performance énergétique.
Appartements à vendre avec terrasse et garage
Inspirée de l’architecture provençale, la résidence propose des logements lumineux, équipés de grandes baies vitrées et de terrasses exposées sud-ouest. Parfait pour une résidence principale, une résidence secondaire ou un investissement locatif dans le Var.
Prestations haut de gamme et confort moderne
•Chauffage et climatisation avec pompe à chaleur collective et thermostat individuel.
•Grand carrelage 60 x 60 cm dans toutes les pièces.
•Volets roulants électriques avec commande centralisée.
•Placards aménagés selon les plans.
•Salle de bain équipée avec faïence 60 x 20 cm autour de la douche ou baignoire.
•Toilettes suspendues avec lave-mains selon plan.
•Résidence sécurisée avec vidéophone et garages fermés en sous-sol.
Un cadre de vie privilégié dans le Golfe de Saint-Tropez
Idéalement située entre terre et mer, cette résidence offre un accès rapide aux plages de Saint-Tropez, Port Grimaud et Cavalaire-sur-Mer. Cogolin est un secteur recherché pour son cadre de vie agréable, son climat méditerranéen et son essor économique.
Un investissement immobilier rentable et sécurisé
•Résidence respectant la réglementation environnementale RE 2020.
•Eligible au dispositif Pinel pour une réduction d’impôts.
•Forte demande locative dans le secteur.
•Construction conforme au Pacte 3B (Bas carbone, Biodiversité, Bien-vivre).
Appartements disponibles avec grande terrasse
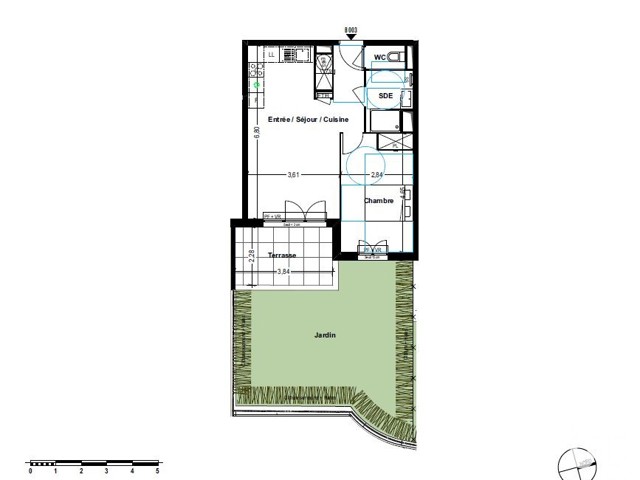
T2 de 45.93 m² environ avec terrasse de 8.76 m² environ jardin privatif de 37.46m2 environ et garage.
Profitez d’une piscine privée
La résidence dispose d’une piscine privée, accessible six mois par an, pour savourer pleinement le climat ensoleillé du Var.

Honoraires d’agence à la charge du vendeur. Bien non soumis au DPE. Les informations sur les risques auxquels ce bien est exposé sont disponibles sur le site Géorisques : La présente annonce immobilière a été rédigée sous la responsabilité éditoriale de Mlle Jessica Alessandrini EI (ID 90440), mandataire indépendant en immobilier (sans détention de fonds), agent commercial de la SAS I@D France immatriculé au RSAC de Draguigan sous le numéro 451826549, titulaire de la carte de démarchage immobilier pour le compte de la société I@D France SAS.
Retrouvez tous nos biens sur notre site internet.

Contact

N'oubliez pas de préciser, que vous avez lu cette annonce sur Var-immo.net (un site de Ouest-Var.net)

Iad France
Jessica Alessandrini
06 73 75 66 47
*: Surface indiquée par le propriétaire sous toutes réserves en l'absence d'attestation de surface.

Contactez l'annonceur

Merci d'indiquer au moins un numéro de téléphone*
Saisissez le code ci-dessus

*: Les champs marqués d'une asterixe sont obligatoire.

Vente immobilier, maisons, villas, appartements et terrains