Immobilier Ouest Var
Var-Immo > Draguignan > Appartement > SFN-1881829-9

162 470 € Appartement T2 Draguignan

Pièces: 2
Surface: 42 m2 *
Référence: SFN-1881829-9
iad France - Alexandre Rachel (07 83 42 76 10) vous propose : Appartement 2 pièces avec balcon – Draguignan (83)
Prix : 162 470€ TTC
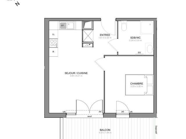
Situé dans un environnement calme de Draguignan, cet appartement 2 pièces offre une atmosphère confortable et agréable au quotidien.
D’une surface d’environ 42 m² environ, il se compose d’une entrée, d’un séjour lumineux avec cuisine ouverte, d’une chambre spacieuse, ainsi que d’une salle d’eau avec toilette.
L’atout principal :
Un balcon d’environ 11 m² environ, idéal pour profiter de l’extérieur, créer un espace détente ou y installer une petite table pour vos moments de pause.
Prestations appréciées :
•Séjour lumineux et agréable
•Chambre confortable
•Balcon spacieux
•Agencement optimisé
•Cadre de vie paisible
Un appartement parfait pour une résidence principale fonctionnelle et agréable, proche des commodités du quotidien.

Honoraires d’agence à la charge du vendeur. Bien non soumis au DPE. Les informations sur les risques auxquels ce bien est exposé sont disponibles sur le site Géorisques : La présente annonce immobilière a été rédigée sous la responsabilité éditoriale de M. Alexandre Rachel EI (ID 57750), mandataire indépendant en immobilier (sans détention de fonds), agent commercial de la SAS I@D France immatriculé au RSAC de DRAGUIGNAN sous le numéro 880748447, titulaire de la carte de démarchage immobilier pour le compte de la société I@D France SAS.
Retrouvez tous nos biens sur notre site internet.

Contact

N'oubliez pas de préciser, que vous avez lu cette annonce sur Var-immo.net (un site de Ouest-Var.net)

Iad France
Alexandre Rachel
07 83 42 76 10
*: Surface indiquée par le propriétaire sous toutes réserves en l'absence d'attestation de surface.
Annonce créée le 29 novembre 2025. Cette annonce a été consultée 1 fois

Contactez l'annonceur

Merci d'indiquer au moins un numéro de téléphone*
Saisissez le code ci-dessus

*: Les champs marqués d'une asterixe sont obligatoire.

Vente immobilier, maisons, villas, appartements et terrains