Immobilier Ouest Var
Var-Immo > Draguignan > Appartement > SFN-1196096-4

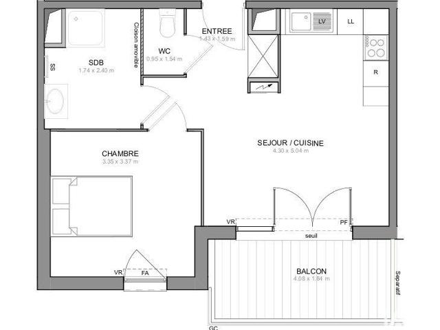
188 500 € Appartement T2 Draguignan

Pièces: 2
Surface: 42 m2 *
Référence: SFN-1196096-4
iad France - Guillaume Sueur (06 10 35 64 71) vous propose : Beau 2P en Rdc à DRAGUIGNAN. Cet appartement offre une belle pièce de vie de 20m² environ avec une chambre de 12m² environ. Une salle d'eau et un wc séparé. Vendu avec un parking en sous sol.

Honoraires d’agence à la charge du vendeur. Bien non soumis au DPE. Les informations sur les risques auxquels ce bien est exposé sont disponibles sur le site Géorisques : La présente annonce immobilière a été rédigée sous la responsabilité éditoriale de M. Guillaume Sueur EI (ID 13733), mandataire indépendant en immobilier (sans détention de fonds), agent commercial de la SAS I@D France immatriculé au RSAC de GRASSE sous le numéro 808650865, titulaire de la carte de démarchage immobilier pour le compte de la société I@D France SAS.
Retrouvez tous nos biens sur notre site internet.
Nature du chauffage: électricité
Type de chauffage: individuel
Annexes: Parking.

Contact

N'oubliez pas de préciser, que vous avez lu cette annonce sur Var-immo.net (un site de Ouest-Var.net)

Iad France
Guillaume Sueur
06 10 35 64 71
Barème d'honoraires
*: Surface indiquée par le propriétaire sous toutes réserves en l'absence d'attestation de surface.
Annonce créée le 17 février 2026. Cette annonce a été consultée 0 fois

Contactez l'annonceur

Merci d'indiquer au moins un numéro de téléphone*
Saisissez le code ci-dessus

*: Les champs marqués d'une asterixe sont obligatoire.

Vente immobilier, maisons, villas, appartements et terrains