Immobilier Ouest Var
Var-Immo > Sainte Maxime > Appartement > SFN-1849693

265 000 € Appartement T2 Sainte Maxime

Pièces: 2
Surface: 39 m2 *
Référence: SFN-1849693
iad France - Alexis Dayon vous propose: Opportunité à Saisir - en plein cOEur de Sainte-Maxime. Vous êtes à seulement 2 minutes à pied de la plage et de tous les commerces.

Adresse : Résidence « Riviera », 13 av. Saint-Exupéry, 83120 Sainte-Maxime

Résidence sécurisée de standing avec piscine, gardien et place de parking privative.

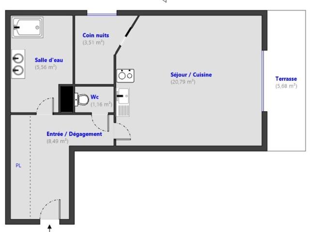
Charmant T1 bis de 39 m² prolongé par une terrasse de 6 m²

Le bien se compose :
- d’une grande entrée avec placard,
- d’une salle de bain entièrement rénovée en 2024,
- de WC séparés,
- d’une spacieuse pièce de vie de 20 m²,
- d’une chambre cabine actuellement aménagée avec un lit superposé pour deux enfants, offrant la possibilité d’y installer un lit de 130 cm.

L’ensemble s’ouvre sur une terrasse de 6 m², permettant d’y prendre les repas à 4 personnes. Exposition idéal avec le soleil sur la terrasse du matin jusqu'au milieu d'après midi.

Atouts clés :

- Emplacement hyper-centre : plage, port, commerces et marché à pied
- Résidence recherchée avec piscine et gardien
- Faible Charges : 103 €/mois
- Terrasse agréable bien exposée pour profiter du soleil du matin jusqu’au milieu d’après-midi
- Place de parking privative incluse
- Aucune anomalie électrique
- Quote-part générale : 0,90 %. // Quote-part bâtiment : 3,39 %
- Aucun gros travaux voté ou à prévoir
- DPE : classe E qui passera en D en janvier 2026 avec la nouvelle réglementation.





La presente annonce immobiliere vise 2 lots situés dans une copropriété de 145 lots au total et ne faisant l'objet d'aucune procédure en cours citée à l'article L. 721-1 du code de la construction et de l'habitation. Montant moyen mensuel de charges déclaré par le vendeur : 103€ par mois (soit 1236 € annuel). Honoraires d'agence à la charge du vendeur.
Information d'affichage énergétique sur ce bien : classe ENERGIE E indice 292 et classe CLIMAT B indice 9. Les informations sur les risques auxquels ce bien est exposé, y compris l'obligation légale de débroussaillement, sont disponibles sur le site Géorisques :
La présente annonce immobilière a été rédigée sous la responsabilité éditoriale de M Alexis Dayon mandataire indépendant en immobilier (sans détention de fonds), agent commercial de la SAS I@D France immatriculé au RSAC de NANTERRE sous le numéro 941926545, titulaire de la carte de démarchage immobilier pour le compte de la société I@D France SAS.
Nombre de chambres: 1
Nombre d'étages: 5
Année de construction: 1980
Balcon: Oui
Nature du chauffage: électricité
Type de chauffage: individuel
Annexes: Parking.

Diagnostic de performance énergétique

Classe énergie (kWhEP/m².an)

292

Gaz à effet de serre (kg éqCO2/m².an)

9

Contact

N'oubliez pas de préciser, que vous avez lu cette annonce sur Var-immo.net (un site de Ouest-Var.net)

Iad France
Alexis Dayon
06 18 77 68 47
*: Surface indiquée par le propriétaire sous toutes réserves en l'absence d'attestation de surface.
Annonce créée le 20 octobre 2025. Cette annonce a été consultée 1 fois

Contactez l'annonceur

Merci d'indiquer au moins un numéro de téléphone*
Saisissez le code ci-dessus

*: Les champs marqués d'une asterixe sont obligatoire.