Immobilier Ouest Var
Var-Immo > Toulon > Appartement > SFN-1987092

300 000 € Appartement T3 Toulon

Pièces: 3
Surface: 58 m2 *
Référence: SFN-1987092
iad France - Helene Queste Angeli vous propose: Toulon – Mourillon | T3 avec terrasse et percée mer, plages à pied

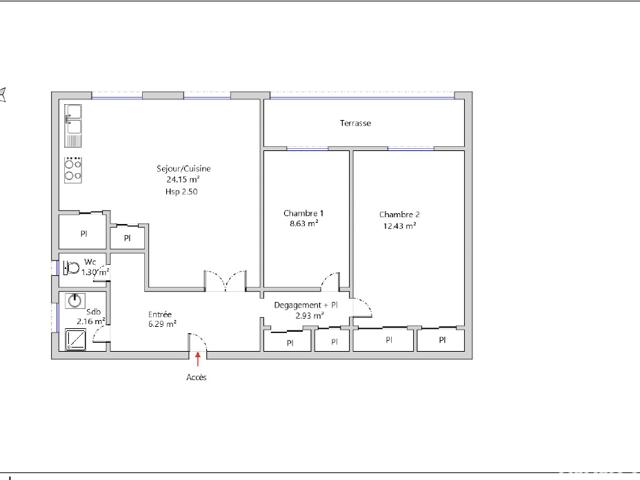
Idéalement situé au cOEur du quartier prisé du Mourillon, à proximité immédiate des commerces, des écoles et des plages, ce T3 parfaitement entretenu offre un cadre de vie pratique et recherché, où tout se fait à pied.

L’appartement propose une distribution fonctionnelle et bénéficie de nombreuses ouvertures, apportant une luminosité naturelle agréable. La terrasse de 7 m2, véritable prolongement de l’espace de vie, permet de profiter de l’extérieur au quotidien, avec une percée mer dans l’axe de la plage du Lido, apportant une vraie ambiance bord de mer.

**Le bien se compose de :**
•Une pièce de vie avec cuisine ouverte sur le salon/séjour, avec accès direct à la terrasse
•Deux chambres dont une spacieuse avec rangements, les deux ouvrent sur l’extérieur
•Une salle d’eau avec douche à l'italienne
•WC indépendants
•Un dégagement offrant de nombreux rangements intégrés

**Les prestations :**
•Climatisation réversible dans chaque pièce
•Chauffage avec répartiteur compris dans les charges
•Beaucoup de rangements, un vrai confort au quotidien
•Terrasse avec percée visuelle sur la mer, côté plage du Lido
•Une cave

**Mon avis**
Un appartement clé en main, à l’emplacement particulièrement recherché, idéal en résidence principale, pied-à-terre ou investissement. La proximité immédiate des plages du Mourillon et cette échappée mer discrète mais bien présente font toute la différence.

**En savoir plus**
Merci de me contacter de préférence par SMS pour plus de réactivité.

**Inter-agences bienvenues**
Partage avec plaisir.


La presente annonce immobiliere vise 2 lots situés dans une copropriété de 32 lots au total et ne faisant l'objet d'aucune procédure en cours citée à l'article L. 721-1 du code de la construction et de l'habitation. Montant moyen mensuel de charges déclaré par le vendeur : 110€ par mois (soit 1320 € annuel). Honoraires d'agence à la charge du vendeur.
Information d'affichage énergétique sur ce bien : classe ENERGIE D indice 224 et classe CLIMAT C indice 15. Les informations sur les risques auxquels ce bien est exposé, y compris l'obligation légale de débroussaillement, sont disponibles sur le site Géorisques :
La présente annonce immobilière a été rédigée sous la responsabilité éditoriale de Mme Helene Queste Angeli mandataire indépendant en immobilier (sans détention de fonds), agent commercial de la SAS I@D France immatriculé au RSAC de TOULON sous le numéro 834276859, titulaire de la carte de démarchage immobilier pour le compte de la société I@D France SAS.
Nombre de chambres: 2
Etage: 1
Nombre d'étages: 4
Année de construction: 1955
Nature du chauffage: gaz
Type de chauffage: individuel
Annexes: Cave.

Diagnostic de performance énergétique

Classe énergie (kWhEP/m².an)

224

Gaz à effet de serre (kg éqCO2/m².an)

15

Contact

N'oubliez pas de préciser, que vous avez lu cette annonce sur Var-immo.net (un site de Ouest-Var.net)

Iad France
Helene Queste Angeli
07 86 11 00 14
*: Surface indiquée par le propriétaire sous toutes réserves en l'absence d'attestation de surface.
Annonce créée le 01 avril 2026. Cette annonce a été consultée 0 fois

Contactez l'annonceur

Merci d'indiquer au moins un numéro de téléphone*
Saisissez le code ci-dessus

*: Les champs marqués d'une asterixe sont obligatoire.