Immobilier Ouest Var
Var-Immo > Cogolin > Appartement > SFN-1674647-23

385 000 € Appartement T3 Cogolin

Pièces: 3
Surface: 64 m2 *
Référence: SFN-1674647-23
iad France - Judicaelle Louis (07 43 56 89 76) vous propose : Résidence à Cogolin – Appartement T3 et Confortable
Cette petite résidence de deux bâtiments est située dans un quartier résidentiel calme, à quelques pas du village de Cogolin. Elle profite d'un cadre de vie agréable avec des espaces verts de plus de 1400 m² environ, représentant plus de 40 % de la surface totale du terrain.
Les appartements, au design provençal élégant avec des façades en teintes ocre et des toits en tuiles, sont conçus pour offrir un confort optimal et une luminosité naturelle grâce à leurs grandes terrasses orientées sud-ouest.
Les équipements et prestations :
•Chauffage et climatisation : Pompe à chaleur collective avec thermostat individuel dans chaque pièce.
•Revêtement de sol : Carrelage haut de gamme en 60 x 60 cm dans tous les espaces.
•Volets roulants électriques : Commandés à distance pour plus de confort.
•Rangements : Placards intégrés selon le plan de l'appartement.
•Salles de bain : Entièrement équipées, avec faïence 60 x 20 cm autour des douches et baignoires.
•Toilettes suspendues : Design moderne pour un gain de place.
•Lave-main : Présent dans les WC (selon plan).
•Sécurité : Résidence sécurisée par vidéophone.
•Stationnement : Garages fermés en sous-sol, offrant sécurité et tranquillité.
Appartement disponible :
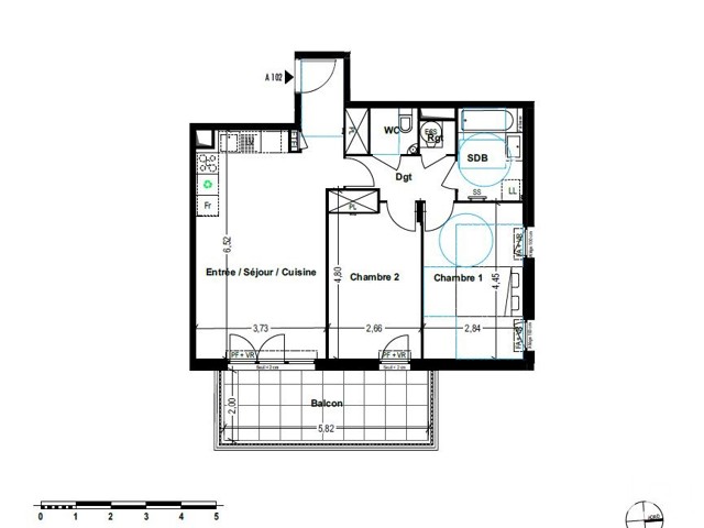
•T3 de 64.23m² environ avec son balcon de 11.64 m² environ : Un espace cosy et lumineux avec une grande terrasse idéale pour profiter du climat méditerranéen.
Emplacement privilégié et région dynamique :
Le Golfe de Saint-Tropez, incluant les communes de Cogolin, Grimaud, Cavalaire et Sainte-Maxime, est un centre économique en plein essor. Cette région, avec son emplacement stratégique sur la Côte d'Azur, offre un cadre de vie exceptionnel et une forte attractivité pour les investisseurs et professionnels en quête d'un équilibre entre vie personnelle et professionnelle.
Engagement en faveur du développement durable :
La résidence respecte les normes de la réglementation RE 2020 et s'inscrit dans une démarche de construction responsable avec le Pacte 3B (Bas carbone, Biodiversité et Bien-vivre). Elle vise à atteindre les meilleurs critères de performance énergétique (DPE).
Un cadre de vie agréable avec piscine :
Profitez d’une belle piscine dans un environnement ensoleillé, offrant des moments de détente pendant les six mois de l’année où la baignade est un véritable plaisir sur la Côte d'Azur.

Honoraires d’agence à la charge du vendeur. Bien non soumis au DPE. Les informations sur les risques auxquels ce bien est exposé sont disponibles sur le site Géorisques : La présente annonce immobilière a été rédigée sous la responsabilité éditoriale de Mlle Judicaelle Louis EI (ID 92421), mandataire indépendant en immobilier (sans détention de fonds), agent commercial de la SAS I@D France immatriculé au RSAC de DRAGUIGNAN sous le numéro 811245687, titulaire de la carte de démarchage immobilier pour le compte de la société I@D France SAS.
Retrouvez tous nos biens sur notre site internet.

Contact

N'oubliez pas de préciser, que vous avez lu cette annonce sur Var-immo.net (un site de Ouest-Var.net)

Iad France
Judicaelle Louis
07 43 56 89 76
*: Surface indiquée par le propriétaire sous toutes réserves en l'absence d'attestation de surface.
Annonce créée le 19 mars 2026. Cette annonce a été consultée 0 fois

Contactez l'annonceur

Merci d'indiquer au moins un numéro de téléphone*
Saisissez le code ci-dessus

*: Les champs marqués d'une asterixe sont obligatoire.

Vente immobilier, maisons, villas, appartements et terrains