Immobilier Ouest Var
Var-Immo > Fréjus > Appartement > SFN-1905270

249 000 € Appartement T3 Fréjus

Pièces: 3
Surface: 60 m2 *
Référence: SFN-1905270
iad France - Andréa Durey vous propose: Appartement clé en main de 3 pièces, à 25min des plages de Fréjus dans une résidence de 2018.

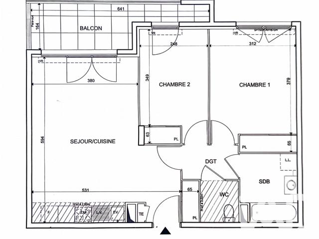
Dans une résidence sécurisée, proche de tous les commerces à pied, cet appartement lumineux de 60m2 au 3ème étage sur 4 avec ascenseur se compose:

*D’une entrée, ouverte sur la pièce de vie climatisée d’environ 30m2 et sa cuisine américaine
*D'une terrasse de 8m²
*D’un wc indépendant
*D’une salle de bains avec meuble vasque et emplacement pour lave-linge
*De deux chambres de 13,55m2 et 10m2 avec placard

Prestations de qualité:
- double vitrage
- climatisation
- cuisine équipée avec électroménager intégré

L'appartement ne nécessite aucun travaux pour une installation rapide!
La résidence est bien entretenue et possède un local à vélo.

Pour parfaire le tableau, ce bien est vendu avec une place de parking privative.

Coup de coeur pour:

La construction récente de la résidence aux normes pmr avec excellente isolation thermique et phonique.
La localisation centrale entre Fréjus et Saint-Raphaël, idéale pour accéder au centre-ville et plages en 20min à pied.

Écoles, pharmacie, supermarché, médecins à moins de 7min à pied !

Charges : 240€/mois incluant l’eau chaude et l’eau froide (en fonction de la consommation individuelle)
Taxe foncière : 1230€/an

Informations et visites 7j/7.
Diagnostics, album photo complet et vidéos sur demande !

La presente annonce immobiliere vise 2 lots situés dans une copropriété de 90 lots au total et ne faisant l'objet d'aucune procédure en cours citée à l'article L. 721-1 du code de la construction et de l'habitation. Montant moyen mensuel de charges déclaré par le vendeur : 240€ par mois (soit 2880 € annuel). Honoraires d'agence à la charge du vendeur.
Information d'affichage énergétique sur ce bien : classe ENERGIE B indice 56 et classe CLIMAT B indice 6. Les informations sur les risques auxquels ce bien est exposé, y compris l'obligation légale de débroussaillement, sont disponibles sur le site Géorisques :
La présente annonce immobilière a été rédigée sous la responsabilité éditoriale de Mme Andréa Durey mandataire indépendant en immobilier (sans détention de fonds), agent commercial de la SAS I@D France immatriculé au RSAC de FREJUS sous le numéro 841491608, titulaire de la carte de démarchage immobilier pour le compte de la société I@D France SAS.
Nombre de chambres: 2
Etage: 3
Année de construction: 2018
Nature du chauffage: électricité
Type de chauffage: individuel
Annexes: Parking.

Diagnostic de performance énergétique

Classe énergie (kWhEP/m².an)

56

Gaz à effet de serre (kg éqCO2/m².an)

6

Contact

N'oubliez pas de préciser, que vous avez lu cette annonce sur Var-immo.net (un site de Ouest-Var.net)

Iad France
Andréa Durey
06 99 93 98 28
*: Surface indiquée par le propriétaire sous toutes réserves en l'absence d'attestation de surface.
Annonce créée le 09 décembre 2025. Cette annonce a été consultée 1 fois

Contactez l'annonceur

Merci d'indiquer au moins un numéro de téléphone*
Saisissez le code ci-dessus

*: Les champs marqués d'une asterixe sont obligatoire.