Immobilier Ouest Var
Var-Immo > La Garde > Appartement > SFN-1961632

410 000 € Appartement T3 La Garde

Pièces: 3
Surface: 77 m2 *
Référence: SFN-1961632
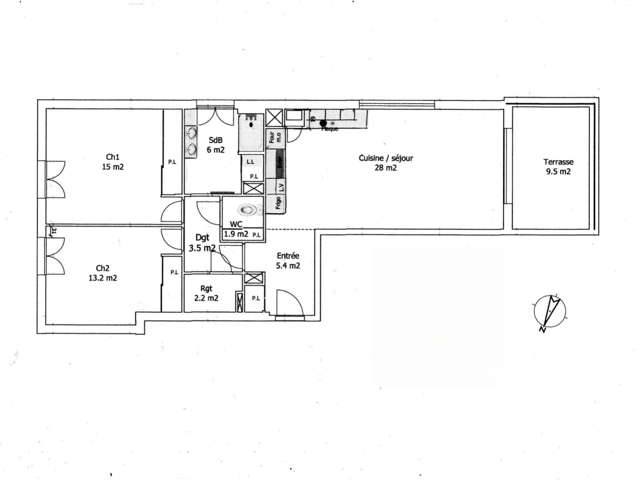
iad France - Thomas Pipon vous propose: Appartement T3 77 m² avec terrasse 10 m² et double stationnement – Résidence neuve 2024 La Garde centre-ville
À La Garde, stratégiquement situé à proximité immédiate du centre-ville, des commerces, transports publics et d'un espace vert classé, dans une résidence neuve fermée et sécurisée aux normes PMR, découvrez cet appartement 3 pièces de 77 m² alliant modernité, luminosité et praticité quotidienne.
Espace de vie lumineux et agréable : l'entrée franchie , profitez d'une cuisine ouverte entierement amenagée et équipée, sur séjour de 28 m² prolongée par une terrasse de 10 m² parfaitement exposée sud-ouest, idéale pour petits-déjeuners ensoleillés, repas conviviaux ou soirées apéritives.
Le coin nuit se compose de deux belles chambres de 13 et 15 m² avec rangements intégrés, d'une grande salle d'eau, d'un WC indépendant et d'un cellier offrant un espace de rangement supplémentaire.
Côté prestations, l'appartement bénéficie d'équipements haut de gamme : chauffe-eau thermodynamique, climatisation réversible, volets roulants électriques, multiples rangements, le tout sans travaux à prévoir.
Deux stationnements complètent ce bien : une place extérieure et une place couverte, incluses dans la vente, atout majeur en centre-ville.
Un T3 récent, lumineux, fonctionnel et économe en énergie, avec DPE de haut niveau, dans un environnement recherché de La Garde – à visiter .

La presente annonce immobiliere vise 3 lots situés dans une copropriété de 105 lots au total et ne faisant l'objet d'aucune procédure en cours citée à l'article L. 721-1 du code de la construction et de l'habitation. Montant moyen mensuel de charges déclaré par le vendeur : 96.67€ par mois (soit 1160 € annuel). Honoraires d'agence à la charge du vendeur.
Information d'affichage énergétique sur ce bien : classe ENERGIE A indice 65 et classe CLIMAT A indice 2. Les informations sur les risques auxquels ce bien est exposé, y compris l'obligation légale de débroussaillement, sont disponibles sur le site Géorisques :
La présente annonce immobilière a été rédigée sous la responsabilité éditoriale de M Thomas Pipon mandataire indépendant en immobilier (sans détention de fonds), agent commercial de la SAS I@D France immatriculé au RSAC de TOULON sous le numéro 881803159, titulaire de la carte de démarchage immobilier pour le compte de la société I@D France SAS.
Nombre de chambres: 2
Etage: 4
Nombre d'étages: 5
Année de construction: 2024
Nature du chauffage: électricité
Type de chauffage: individuel

Diagnostic de performance énergétique

Classe énergie (kWhEP/m².an)

65

Gaz à effet de serre (kg éqCO2/m².an)

2

Contact

N'oubliez pas de préciser, que vous avez lu cette annonce sur Var-immo.net (un site de Ouest-Var.net)

Iad France
Thomas Pipon
06 27 51 87 71
*: Surface indiquée par le propriétaire sous toutes réserves en l'absence d'attestation de surface.
Annonce créée le 04 mars 2026. Cette annonce a été consultée 1 fois

Contactez l'annonceur

Merci d'indiquer au moins un numéro de téléphone*
Saisissez le code ci-dessus

*: Les champs marqués d'une asterixe sont obligatoire.