Immobilier Ouest Var
Var-Immo > Saint Raphaël > Appartement > SFN-1816087

410 000 € Appartement T3 Saint Raphaël

Pièces: 3
Surface: 76 m2 *
Référence: SFN-1816087
iad France - Méliné Jabourian vous propose: SAINT RAPHAËL - 3 PIÈCES VUE MER AVEC TERRASSE
Vendu avec Grand garage avec prise électrique et Cave.

Laissez-vous séduire par ce magnifique appartement 3 pièces de 76 m², exposé plein Sud, sans aucun vis-à-vis, avec une vue imprenable sur la mer Méditerranée !

Dans un état irréprochable, il est situé au 1er étage sur 2 avec ascenseur d’une résidence moderne et sécurisée de 2008 à quelques min de la plage et du bord de mer.
Ce logement économe réunit confort, luminosité et emplacement privilégié. Grâce à l’implantation en hauteur de la résidence, ce 1er étage se vit comme un étage élevé avec une vue plongeante sur la mer et la nature !

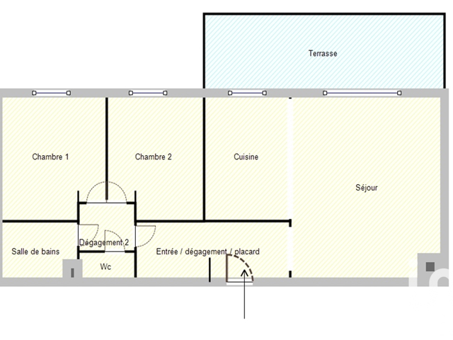
Il est composé d'une belle pièce à vivre spacieuse avec cuisine ouverte entièrement équipée avec îlot central et espace dînatoire convivial, donnant sur une grande terrasse vue mer.
Dans la partie intime, 2 chambres avec dressings intégrés, 1 Salle de bains, 1 WC séparé et de nombreux rangements pour un quotidien organisé.

Les atouts :
- Le calme et la vue mer !
- L'état général de l'appartement,
- Double vitrage,
- Stores manuels,
- Porte blindée,
- Accès PMR,
- Grand garage avec prise électrique (pour VE) et éclairage,
- Grande cave saine et pratique,
- Terrasse profonde de 14m2,
- Charges à 214/ mois comprenant : Eau chaude et eau froide, entretien parties communes, entretien des espaces verts et des sous-sols, entretien ascenseur, charge de syndic professionnel),
- Chauffage individuel électrique,
- Taxe foncière : 1378/ an,
- NOTA BENE : De très nombreux parkings visiteurs dans la résidence et devant la résidence.
- Zone inconstructible devant l'immeuble, la nature sera conservée et la vue mer imprenable !

Localisation idéale :
À quelques minutes du collège de l’Estérel, de la piscine Alain Chateigner, du CRAPA, du centre médical Epsilon, du centre commercial E.Leclerc et à seulement 5min du centre-ville et du littoral / plages !

Un cadre de vie privilégié entre mer, nature et commodités. Plus de photos sur simple demande. Infos et visites 7j/7 !

La presente annonce immobiliere vise 3 lots situés dans une copropriété de 195 lots au total et ne faisant l'objet d'aucune procédure en cours citée à l'article L. 721-1 du code de la construction et de l'habitation. Montant moyen mensuel de charges déclaré par le vendeur : 214€ par mois (soit 2568 € annuel). Honoraires d'agence à la charge du vendeur.
Information d'affichage énergétique sur ce bien : classe ENERGIE B indice 98 et classe CLIMAT A indice 2. Les informations sur les risques auxquels ce bien est exposé, y compris l'obligation légale de débroussaillement, sont disponibles sur le site Géorisques :
La présente annonce immobilière a été rédigée sous la responsabilité éditoriale de Mme Méliné Jabourian mandataire indépendant en immobilier (sans détention de fonds), agent commercial de la SAS I@D France immatriculé au RSAC de FREJUS sous le numéro 514572924, titulaire de la carte de démarchage immobilier pour le compte de la société I@D France SAS.
Nombre de chambres: 2
Nombre d'étages: 2
Année de construction: 2008
Nature du chauffage: électricité
Type de chauffage: individuel
Annexes: Parking, Garage.

Diagnostic de performance énergétique

Classe énergie (kWhEP/m².an)

98

Gaz à effet de serre (kg éqCO2/m².an)

2

Contact

N'oubliez pas de préciser, que vous avez lu cette annonce sur Var-immo.net (un site de Ouest-Var.net)

Iad France
Méliné Jabourian
06 19 03 44 76
*: Surface indiquée par le propriétaire sous toutes réserves en l'absence d'attestation de surface.
Annonce créée le 29 juillet 2025. Cette annonce a été consultée 1 fois

Contactez l'annonceur

Merci d'indiquer au moins un numéro de téléphone*
Saisissez le code ci-dessus

*: Les champs marqués d'une asterixe sont obligatoire.