Immobilier Ouest Var
Var-Immo > Toulon > Appartement > SFN-1851063

840 000 € Appartement T4 Toulon

Pièces: 4
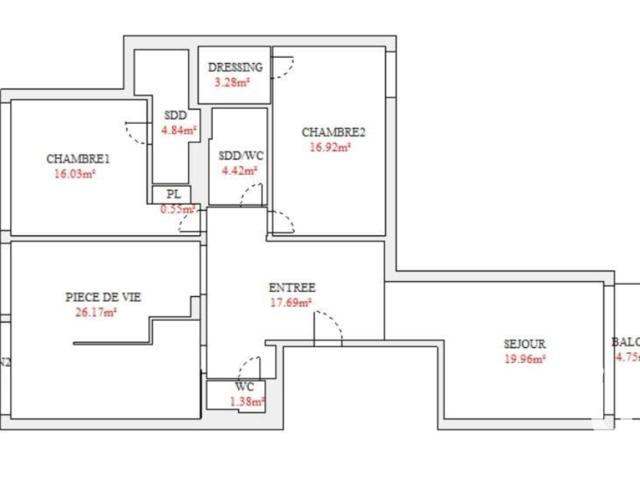
Surface: 111 m2 *
Référence: SFN-1851063
iad France - Audrey Pernet vous propose: Vivre la Méditerranée au quotidien – Appartement d’Exception à Cap Brun (Toulon)
T3 111M2-cave-2 places de parking privatives dont une couverte

Et si vous commenciez vos journées face à la mer, dans un havre de paix au cOEur de Toulon ?

Bienvenue au Parc Isthmia, une résidence de standing nichée dans un écrin de verdure de 3 hectares, à deux pas de l’eau.
TRAVAUX DE RENOVATION VOTES ET PRIS EN CHARGE PAR LE PROPRIETAIRE

Ce T3 de 111 m², rénové, vous offre bien plus qu’un logement :
Un mode de vie entre luxe, nature et mer.

Salon plein sud avec terrasse et vue mer à couper le souffle
Cuisine ouverte moderne avec balcon et coin repas
Suite parentale avec dressing et salle d’eau privative
Deuxième chambre confortable avec dressing
2e salle de bains, WC indépendant, nombreux rangements

L’art de vivre en bord de mer :
Accès privé à la plage à pied
Piscine chauffée face à la Méditerranée
Tennis, parking sécurisé, cave, gardien…
Situé entre les plages de l’anse Méjean et le centre vivant du Mourillon, cet appartement combine sérénité, standing et proximité urbaine.


Coup de cOEur assuré.
Inter-agence bienvenue.

La presente annonce immobiliere vise 4 lots situés dans une copropriété de 312 lots au total et ne faisant l'objet d'aucune procédure en cours citée à l'article L. 721-1 du code de la construction et de l'habitation. Montant moyen mensuel de charges déclaré par le vendeur : 525€ par mois (soit 6300 € annuel). Honoraires d'agence à la charge du vendeur.
Information d'affichage énergétique sur ce bien : classe ENERGIE D indice 200 et classe CLIMAT D indice 31. Les informations sur les risques auxquels ce bien est exposé, y compris l'obligation légale de débroussaillement, sont disponibles sur le site Géorisques :
La présente annonce immobilière a été rédigée sous la responsabilité éditoriale de Mme Audrey Pernet mandataire indépendant en immobilier (sans détention de fonds), agent commercial de la SAS I@D France immatriculé au RSAC de TOULON sous le numéro 919415034, titulaire de la carte de démarchage immobilier pour le compte de la société I@D France SAS.
Nombre de chambres: 2
Etage: 3
Nombre d'étages: 4
Année de construction: 1969
Nature du chauffage: gaz
Type de chauffage: collectif
Annexes: Parking.

Diagnostic de performance énergétique

Classe énergie (kWhEP/m².an)

200

Gaz à effet de serre (kg éqCO2/m².an)

31

Contact

N'oubliez pas de préciser, que vous avez lu cette annonce sur Var-immo.net (un site de Ouest-Var.net)

Iad France
Audrey Pernet
06 87 35 62 88
*: Surface indiquée par le propriétaire sous toutes réserves en l'absence d'attestation de surface.
Annonce créée le 23 septembre 2025. Cette annonce a été consultée 2 fois

Contactez l'annonceur

Merci d'indiquer au moins un numéro de téléphone*
Saisissez le code ci-dessus

*: Les champs marqués d'une asterixe sont obligatoire.