Immobilier Ouest Var
Var-Immo > Fayence > Maison > SFN-1930486-1

390 000 € Maison T4 Fayence

Pièces: 4
Surface: 84 m2 *
Référence: SFN-1930486-1
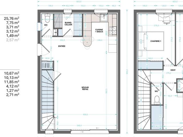
iad France - Inès Querry (06 40 72 71 71) vous propose : Le Clos du Banégon -Lot1- Villa neuve avec jardin – Fayence



Sur les coteaux sud du charmant village de Fayence, dans un environnement résidentiel recherché, découvrez cette villa neuve mitoyenne, en cours de construction et conforme à la norme RT 2012, alliant confort moderne et douceur de vivre provençale, elle fait partie d'un ensemble intimiste de 5 maisons Idéalement situées à proximité des commerces, de l’école et du cOEur du village, elles développent environ 85 m² environ et proposent un bel espace de vie lumineux avec cuisine ouverte, ainsi que trois chambres à l’étage et une salle d’eau et d’un jardin privatif d’environ 100 m² environ, parfait pour profiter du climat ensoleillé de l’arrière-pays varois. Une belle opportunité de vivre entre nature et village. Frais de notaire avantageux– idéal résidence principale, secondaire ou investissement.

Honoraires d’agence à la charge du vendeur. Bien non soumis au DPE. Les informations sur les risques auxquels ce bien est exposé sont disponibles sur le site Géorisques : La présente annonce immobilière a été rédigée sous la responsabilité éditoriale de Mlle Inès Querry EI (ID 85184), mandataire indépendant en immobilier (sans détention de fonds), agent commercial de la SAS I@D France immatriculé au RSAC de Draguignan sous le numéro 419704796, titulaire de la carte de démarchage immobilier pour le compte de la société I@D France SAS.
Retrouvez tous nos biens sur notre site internet.
Nombre de chambres: 3
Année de construction: 2026
Surface du terrain: 219 m2
Nature du chauffage: électricité

Contact

N'oubliez pas de préciser, que vous avez lu cette annonce sur Var-immo.net (un site de Ouest-Var.net)

Iad France
Inès Querry
06 40 72 71 71
Barème d'honoraires
*: Surface indiquée par le propriétaire sous toutes réserves en l'absence d'attestation de surface.
Annonce créée le 06 mars 2026. Cette annonce a été consultée 0 fois

Contactez l'annonceur

Merci d'indiquer au moins un numéro de téléphone*
Saisissez le code ci-dessus

*: Les champs marqués d'une asterixe sont obligatoire.

Vente immobilier, maisons, villas, appartements et terrains