Immobilier Ouest Var
Var-Immo > Fayence > Maison > SFN-1930486-3

382 720 € Maison T4 Fayence

Pièces: 4
Surface: 84 m2 *
Référence: SFN-1930486-3
iad France - Inès Querry (06 40 72 71 71) vous propose : Le Clos du Banégon – Lot n°3

Fayence – Ancienne Voie Ferrée



Maison neuve 4 pièces avec jardin – frais de notaire réduits



Au cOEur d’un environnement résidentiel recherche, a deux pas du village de Fayence, découvrez cette maison neuve de 4 pièces, proposée dans le cadre d’une vente en VEFA, au sein du programme intimiste Le Clos du Banégon, compose de seulement quelques logements.



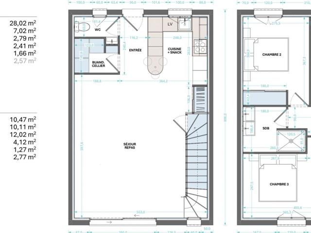
Cette maison mitoyenne en duplex développe une surface de plancher de 85 m² environ, parfaitement pensée pour un confort de vie moderne et fonctionnel, avec un jardin privatif d’environ 60 m² environ et un terrain total de 147 m² environ.



Au rez-de-chaussée

Belle pièce de vie lumineuse avec sejour et cuisine ouverte

Grande baie vitrée coulissante de 2,80 m ouvrant sur le jardin

Entrée avec rangements

WC indépendant

Buanderie / cellier avec rangements



A l’étage

Trois chambres confortables

Salle de bains contemporaine (douche 120 x 90, double vasque)

WC indépendant

Dégagement optimise



Les prestations ont été pensées pour allier esthétique, confort et durabilité

Escalier design a marches balancées

Rangements intégrés

Volumes bien équilibrés

Architecture contemporaine parfaitement intégrée a son environnement



Cette maison conviendra parfaitement

A une famille ou a des primo-accédants, grace a une conception fonctionnelle, des frais de notaire réduits et les garanties du neuf

Ou a un investissement patrimonial securise, dans un secteur recherche de l’arrière-pays varois



Prix de vente 382 720 euros frais d’agence inclus

Vente en VEFA – frais de notaire réduits



Fayence – secteur calme et résidentiel, a proximitédes commerces, écoles et axes principaux.

Honoraires d’agence à la charge du vendeur. Bien non soumis au DPE. Les informations sur les risques auxquels ce bien est exposé sont disponibles sur le site Géorisques : La présente annonce immobilière a été rédigée sous la responsabilité éditoriale de Mlle Inès Querry EI (ID 85184), mandataire indépendant en immobilier (sans détention de fonds), agent commercial de la SAS I@D France immatriculé au RSAC de Draguignan sous le numéro 419704796, titulaire de la carte de démarchage immobilier pour le compte de la société I@D France SAS.
Retrouvez tous nos biens sur notre site internet.
Nombre de chambres: 3
Année de construction: 2026
Surface du terrain: 147 m2
Nature du chauffage: électricité

Contact

N'oubliez pas de préciser, que vous avez lu cette annonce sur Var-immo.net (un site de Ouest-Var.net)

Iad France
Inès Querry
06 40 72 71 71
*: Surface indiquée par le propriétaire sous toutes réserves en l'absence d'attestation de surface.
Annonce créée le 06 mars 2026. Cette annonce a été consultée 0 fois

Contactez l'annonceur

Merci d'indiquer au moins un numéro de téléphone*
Saisissez le code ci-dessus

*: Les champs marqués d'une asterixe sont obligatoire.

Vente immobilier, maisons, villas, appartements et terrains