Immobilier Ouest Var
Var-Immo > Fayence > Maison > SFN-1930486-5

395 200 € Maison T4 Fayence

Pièces: 4
Surface: 84 m2 *
Référence: SFN-1930486-5
iad France - Inès Querry (06 40 72 71 71) vous propose : NOUVEAU EN EXCLUSIVITE- FAYENCE – Coteaux Sud | Maison neuve avec jardin – 'LE CLOS DU BANEGON' Lot N5 Vente en VEFA Frais de notaire réduits

Située sur les coteaux sud de Fayence, au sein d’un quartier résidentiel particulièrement recherché, cette maison mitoyenne neuve s’inscrit dans une promotion confidentielle de seulement cinq logements, au calme de l’ancienne voie ferrée, dans un environnement verdoyant et très ensoleillé.

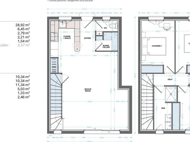
La maison développe une surface de plancher de 85 m² environ, répartie sur deux niveaux (R+1), et offre une organisation fonctionnelle et lumineuse, parfaitement adaptée à une vie de famille ou à un projet patrimonial durable.

Composition du bien :

Maison 4 pièces
3 chambres à l’étage
Séjour / cuisine ouvert sur l’extérieur
1 salle de bain
2 WC (un par niveau)
Buanderie / cellier
Rangements intégrés

Extérieurs :

Surface totale du terrain : 297m² environ
Jardin privatif : 200m² environ, idéal pour profiter des beaux jours dans un cadre paisible
Deux places de stationnement extérieures privatives

Prestations & confort :

Grandes baies vitrées apportant une belle luminosité
Agencement moderne et prestations soignées
Construction neuve conforme aux normes actuelles de confort et de performance énergétique
Environnement résidentiel harmonieux, sans vis-à-vis immédiat

Environnement & situation :

Le Clos du Banégon bénéficie d’un emplacement privilégié, alliant calme, ensoleillement et proximité des commodités :

Commerces accessibles en environ 10-15 minutes à pied
Écoles à environ 5 minutes en voiture
Centre du village de Fayence à environ 10_15 minutes à pied
Accès à l’autoroute A8 en 20-25 minutes en voiture

Un secteur apprécié pour sa qualité de vie, son atmosphère paisible et son cadre naturel, tout en restant connecté aux axes principaux.

Honoraires d’agence à la charge du vendeur. Bien non soumis au DPE. Les informations sur les risques auxquels ce bien est exposé sont disponibles sur le site Géorisques : La présente annonce immobilière a été rédigée sous la responsabilité éditoriale de Mlle Inès Querry EI (ID 85184), mandataire indépendant en immobilier (sans détention de fonds), agent commercial de la SAS I@D France immatriculé au RSAC de Draguignan sous le numéro 419704796, titulaire de la carte de démarchage immobilier pour le compte de la société I@D France SAS.
Retrouvez tous nos biens sur notre site internet.
Nombre de chambres: 3
Année de construction: 2026
Surface du terrain: 297 m2
Nature du chauffage: électricité

Contact

N'oubliez pas de préciser, que vous avez lu cette annonce sur Var-immo.net (un site de Ouest-Var.net)

Iad France
Inès Querry
06 40 72 71 71
*: Surface indiquée par le propriétaire sous toutes réserves en l'absence d'attestation de surface.
Annonce créée le 06 mars 2026. Cette annonce a été consultée 1 fois

Contactez l'annonceur

Merci d'indiquer au moins un numéro de téléphone*
Saisissez le code ci-dessus

*: Les champs marqués d'une asterixe sont obligatoire.

Vente immobilier, maisons, villas, appartements et terrains