Immobilier Ouest Var
Var-Immo > Nans les Pins > Maison > SFN-1938247

436 800 € Maison T4 Nans les Pins

Pièces: 4
Surface: 106 m2 *
Référence: SFN-1938247
iad France - Marion Pereira vous propose: EN EXCLUSIVITÉ - VILLA DE PLAIN PIED AVEC GROS POTENTIEL DE 106M2 AU CALME ABSOLU SUR UN TERRAIN ENTIÈREMENT CLOS DE 2500M2 DANS LE CHARMANT VILLAGE DE NANS LES PINS

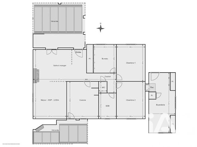
Envie d'espace, de verdure et de tranquillité sans compromis ? Cette villa de 106m2 implantée sur un terrain entièrement clos de 2500m2 et bénéficiant de deux terrasses, l'une côté Est et la seconde côté Ouest, vous offre un cadre de vie rare, où le calme devient un véritable luxe au quotidien.

Cette propriété séduira immédiatement par son environnement et son gros potentiel d'aménagement.
En effet, dès l'entrée, ce bien révèle un agencement pratique et agréable vous laissant la possibilité de faire évoluer les surfaces selon vos envies (aucun murs porteurs à l'intérieur hors murs de périphéries).
La salon-séjour lumineux est idéal pour des moments en famille ou entre amis autour du feu de cheminée (où d'un futur poêle à granule). La cuisine indépendante donnant sur une terrasse extérieur doté d'un four à pizza, peut être ouverte ou semi-ouverte sur le séjour pour créer une grande pièce de vie moderne et conviviale.
Les trois belles chambres sont parfaites pour une famille ou pour utiliser un espace bureau et pouvoir recevoir.
Vous disposerez également d'une salle de bain tout à fait fonctionnelle en l'état.
La présence d'un buanderie indépendante d'environ 15m2 avec une porte d'accès intérieur et également sur l'extérieur, représente une pièce supplémentaire dans ce bien rare à la vente.

Possibilité d’agrandissement

Côté technique, rien à prévoir :
- double vitrage
- toiture en bel état
- fosse sceptique de 2025 avec attestation du Spanc
- aucun travaux structurels à prévoir
- portail automatique
- vide sanitaire
- abris de jardin avec électricité



Honoraires d'agence à la charge du vendeur.
Information d'affichage énergétique sur ce bien : classe ENERGIE D indice 182 et classe CLIMAT A indice 5. Les informations sur les risques auxquels ce bien est exposé, y compris l'obligation légale de débroussaillement, sont disponibles sur le site Géorisques :
La présente annonce immobilière a été rédigée sous la responsabilité éditoriale de Mme Marion Pereira mandataire indépendant en immobilier (sans détention de fonds), agent commercial de la SAS I@D France immatriculé au RSAC de DRAGUIGNAN sous le numéro 937572196, titulaire de la carte de démarchage immobilier pour le compte de la société I@D France SAS.
Nombre de chambres: 3
Année de construction: 1996
Surface du terrain: 2500 m2
Nature du chauffage: électricité
Annexes: Garage.

Diagnostic de performance énergétique

Classe énergie (kWhEP/m².an)

182

Gaz à effet de serre (kg éqCO2/m².an)

5

Contact

N'oubliez pas de préciser, que vous avez lu cette annonce sur Var-immo.net (un site de Ouest-Var.net)

Iad France
Marion Pereira
06 09 34 78 17
*: Surface indiquée par le propriétaire sous toutes réserves en l'absence d'attestation de surface.
Annonce créée le 08 février 2026. Cette annonce a été consultée 0 fois

Contactez l'annonceur

Merci d'indiquer au moins un numéro de téléphone*
Saisissez le code ci-dessus

*: Les champs marqués d'une asterixe sont obligatoire.

Vente immobilier, maisons, villas, appartements et terrains