Immobilier Ouest Var
Var-Immo > Plan d'Aups Sainte Baume > Maison > SFN-1927946

729 000 € Maison T4 Plan d'Aups Sainte Baume

Pièces: 4
Surface: 171 m2 *
Référence: SFN-1927946
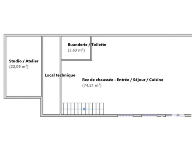
iad France - Cécile Normand vous propose: NOUVEAUTE - EN EXCLUSIVITE - PLAN-D'AUPS-SAINTE-BAUME - Ancienne bergerie entièrement rénovée de 171 m² sur un terrain de 1150 m² avec studio indépendant.

Au cOEur d’un environnement naturel privilégié, dans un secteur particulièrement calme du Plan d’Aups, découvrez cette ancienne bergerie rénovée avec goût, offrant plus de 171 m² habitables, complétés par un studio indépendant de 22 m².

Dès l’entrée, le ton est donné : un superbe mur en pierres d’origine, soigneusement conservé, rappelle l’âme du lieu et confère à la maison un cachet unique. Les volumes sont généreux, l’ambiance chaleureuse, et chaque espace a été pensé pour allier authenticité et confort. Un séjour spacieux de 75 ² avec poêle à bois.

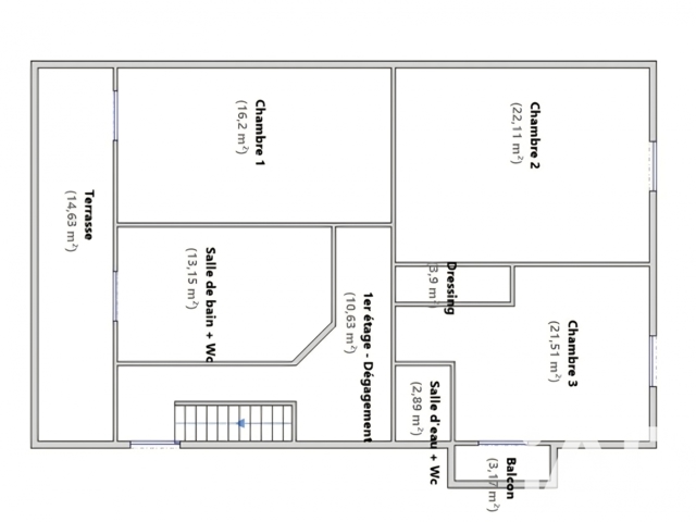
Le coin nuit de 91 m² situé au premier étage accueille trois grandes chambres, dont une avec balcon, une seconde aux proportions remarquables, et une troisième ouvrant sur un solarium de 15 m², véritable espace de détente avec douche solaire et jacuzzi. Une vaste salle de bain complète l’étage.

À l’extérieur, le terrain de 1 150 m², piscinable, offre de multiples possibilités d’aménagement dans un cadre verdoyant et préservé.

Actuellement exploitée en location saisonnière, la propriété bénéficie déjà d’une activité touristique, offrant une opportunité intéressante aussi bien pour une résidence principale ou secondaire que pour un projet locatif.

Un bien rare sur le secteur, mêlant charme de l’ancien, prestations soignées et fort potentiel.

Le Plan-d'Aups-Sainte-Baume est un village varois niché au pied du massif de la Sainte-Baume, offrant un cadre naturel exceptionnel entre forêts et panoramas grandioses.
Apprécié pour son authenticité, son calme et sa qualité de vie, il séduit ceux qui recherchent un environnement préservé tout en restant proche des grands axes vers Marseille, Aix et Toulon.

Je me tiens à votre disposition pour tout complément d'information.

Honoraires d'agence à la charge du vendeur.
Information d'affichage énergétique sur ce bien : classe ENERGIE D indice 202 et classe CLIMAT B indice 7. Les informations sur les risques auxquels ce bien est exposé, y compris l'obligation légale de débroussaillement, sont disponibles sur le site Géorisques :
La présente annonce immobilière a été rédigée sous la responsabilité éditoriale de Mme Cécile Normand mandataire indépendant en immobilier (sans détention de fonds), agent commercial de la SAS I@D France immatriculé au RSAC de draguignan sous le numéro 918147547, titulaire de la carte de démarchage immobilier pour le compte de la société I@D France SAS.
Nombre de chambres: 3
Année de construction: 1850
Surface du terrain: 1149 m2

Diagnostic de performance énergétique

Classe énergie (kWhEP/m².an)

202

Gaz à effet de serre (kg éqCO2/m².an)

7

Contact

N'oubliez pas de préciser, que vous avez lu cette annonce sur Var-immo.net (un site de Ouest-Var.net)

Iad France
Cécile Normand
06 17 10 01 08
*: Surface indiquée par le propriétaire sous toutes réserves en l'absence d'attestation de surface.
Annonce créée le 23 janvier 2026. Cette annonce a été consultée 0 fois

Contactez l'annonceur

Merci d'indiquer au moins un numéro de téléphone*
Saisissez le code ci-dessus

*: Les champs marqués d'une asterixe sont obligatoire.

Vente immobilier, maisons, villas, appartements et terrains