Immobilier Ouest Var
Var-Immo > Puget Ville > Maison > SFN-1947326

420 000 € Maison T8 Puget Ville

Pièces: 8
Surface: 177 m2 *
Référence: SFN-1947326
iad France - Helene Queste Angeli vous propose: Puget Ville – Maison de village d’exception de 177 m², Tropezienne, Terrasse, Garage & 65 m² de cave.

Découvrez cette maison de village unique, entre charme provençal et art de recevoir.
Organisée en trois espaces de vie indépendants et modulables, elle offre une grande liberté d’usage :
une maison familiale conviviale et fluide, ou des espaces distincts permettant à chacun de préserver son autonomie.
Elle se prête également parfaitement à un projet de maison d’hôtes ou d’investissement locatif, notamment grâce à des T2 pouvant être totalement indépendants, sans jamais rompre l’harmonie de l’ensemble.

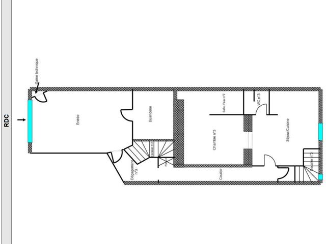
**Le bien se compose :**
Pour l’habitation principale :
• Une master suite occupant un étage complet, avec espace privatif, salle d’eau, dressing et rangements.
• À l’étage supérieur, un espace de vie ouvert comprenant cuisine, salle à manger et salon, sublimé par les matériaux : poutres apparentes, ferronnerie et murs en pierre.
• L’ensemble se prolonge sur une superbe terrasse tropézienne plein sud, équipée d’une pergola bioclimatique, avec vue dégagée sur les collines et les toits du village.
Deux espaces de vie modulables complètent l’ensemble, permettant de multiplier le nombre de suites parentales et/ou de devenir totalement indépendants grâce aux accès distincts disponibles.

**Les prestations :**
• Cachet de l’ancien subtilement mêlé au confort moderne
• Prestations de qualité : climatisation réversible, double vitrage, toiture et isolation entièrement refaites
• Terrasse tropézienne vue collines avec pergola bioclimatique
• Garage de 19 m² & buanderie
• Grand sous-sol de 65 m², idéal pour rangements, atelier, motos, vélos (accès piéton)

**Mon avis : **
Une maison qui réinvente l’art d’habiter.
Pensée pour accueillir, elle offre des volumes harmonieux et un confort remarquable.
La terrasse tropézienne, tournée vers les collines, constitue une véritable pièce à vivre et apporte cette touche exclusive tant recherchée en Provence.

**Le village & l’environnement : **
Située à Puget-Ville, à l’est de Toulon et à environ trente minutes, la commune offre une qualité de vie paisible, tout en restant proche des grands axes, de Fréjus–Saint-Raphaël et de la Méditerranée.
Son cOEur de village pittoresque, ses commerçants, ses animations, ses terres agricoles, son vin et son huile d’olive s’inscrivent dans un environnement mêlant vignes, collines et nature, à seulement 67 km de Marseille.

**En savoir plus**
Vidéo et visite 360° sur demande, après un premier contact.

**Inter-agences bienvenues**


Honoraires d'agence à la charge du vendeur.
Information d'affichage énergétique sur ce bien : classe ENERGIE C indice 114 et classe CLIMAT A indice 3. Les informations sur les risques auxquels ce bien est exposé, y compris l'obligation légale de débroussaillement, sont disponibles sur le site Géorisques :
La présente annonce immobilière a été rédigée sous la responsabilité éditoriale de Mme Helene Queste Angeli mandataire indépendant en immobilier (sans détention de fonds), agent commercial de la SAS I@D France immatriculé au RSAC de TOULON sous le numéro 834276859, titulaire de la carte de démarchage immobilier pour le compte de la société I@D France SAS.
Nombre de chambres: 3
Année de construction: 1900
Annexes: Garage.

Diagnostic de performance énergétique

Classe énergie (kWhEP/m².an)

114

Gaz à effet de serre (kg éqCO2/m².an)

3

Contact

N'oubliez pas de préciser, que vous avez lu cette annonce sur Var-immo.net (un site de Ouest-Var.net)

Iad France
Helene Queste Angeli
07 86 11 00 14
*: Surface indiquée par le propriétaire sous toutes réserves en l'absence d'attestation de surface.
Annonce créée le 14 février 2026. Cette annonce a été consultée 0 fois

Contactez l'annonceur

Merci d'indiquer au moins un numéro de téléphone*
Saisissez le code ci-dessus

*: Les champs marqués d'une asterixe sont obligatoire.

Vente immobilier, maisons, villas, appartements et terrains