Immobilier Ouest Var
Var-Immo > Solliès Pont > Maison > SFN-1942219

990 000 € Maison T8 Solliès Pont

Pièces: 8
Surface: 165 m2 *
Référence: SFN-1942219
iad France - Helene Queste Angeli vous propose: Campagne de Solliès-Pont – Villa de plain-pied avec dépendance, piscine et vue dégagée sur la nature

Dans un environnement naturel et verdoyant, à quelques minutes de La Navarre et de la route des vins, cette villa de plain-pied séduit par son cadre paisible, sa belle luminosité, ses volumes et la qualité de ses prestations.

Implantée sur un terrain paysager d’environ 1200 m² entièrement clôturé, la propriété profite d’une vue dégagée sur la nature et d’un environnement particulièrement agréable à vivre.

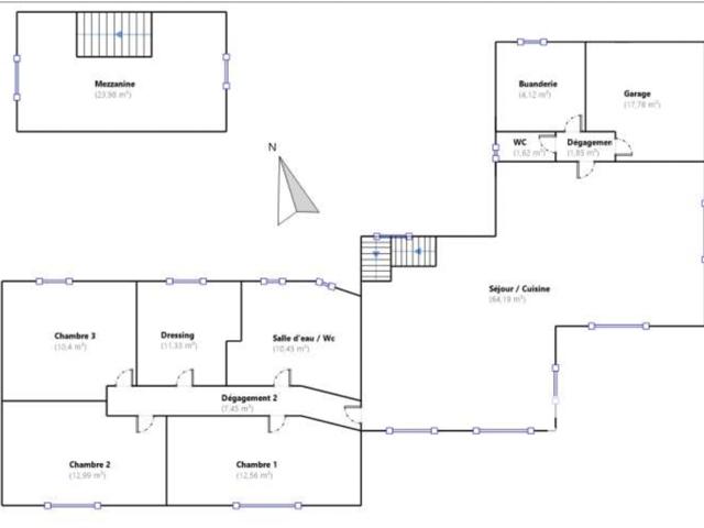
Construite en 2000, la maison développe environ 161 m² habitables pour près de 206 m² au sol. La pièce de vie constitue le cOEur de la maison avec un superbe salon cathédrale prolongé par une mezzanine, apportant beaucoup de volume et de caractère à l’ensemble.

Les extérieurs invitent à profiter pleinement du cadre naturel avec terrasses, pergola bioclimatique, jardin paysager et piscine chauffée.

Une dépendance d’environ 28 m² aménagée comme une maison d’hôte complète l’ensemble, idéale pour recevoir famille et amis.



**Le bien se compose d'**

- Une entrée avec dégagement.
- Un espace de vie lumineux d’environ 64 m² comprenant salon séjour avec hauteur sous plafond cathédrale et cuisine ouverte.
- Une mezzanine d’environ 24 m², idéale pour un bureau, un salon TV ou un espace détente.
- Un toilette indépendant
- Un espace nuit comprenant :
• trois chambres
• un dressing d’environ 11 m² pouvant être transformé en chambre
• une salle d’eau avec WC
- Une buanderie.
- Un garage d’environ 18 m².

**À l’extérieur :**
• une maison d’hôte indépendante d’environ 28 m²
• plusieurs terrasses
• une piscine chauffée à fond plat
• un jardin paysager



**Les prestations**
Excellente performance énergétique DPE A / A
Chauffage au sol réversible
Climatisation réversible
Panneaux photovoltaïques
Pergola bioclimatique
Portail et garage motorisés
Alarme
Forage
Terrain entièrement clôturé



**Mon avis**
Un véritable coup de cOEur pour cette maison tournée vers la nature, où la luminosité et les volumes créent une atmosphère particulièrement agréable à vivre.
La dépendance permet de recevoir confortablement famille et amis, tandis que les extérieurs paysagers et la piscine prolongent naturellement les espaces de vie.



**En savoir plus**

Dossier complet sur demande, après un premier contact.



**Inter-agences bienvenues**


Honoraires d'agence à la charge du vendeur.
Information d'affichage énergétique sur ce bien : classe ENERGIE A indice 62 et classe CLIMAT A indice 2. Les informations sur les risques auxquels ce bien est exposé, y compris l'obligation légale de débroussaillement, sont disponibles sur le site Géorisques :
La présente annonce immobilière a été rédigée sous la responsabilité éditoriale de Mme Helene Queste Angeli mandataire indépendant en immobilier (sans détention de fonds), agent commercial de la SAS I@D France immatriculé au RSAC de TOULON sous le numéro 834276859, titulaire de la carte de démarchage immobilier pour le compte de la société I@D France SAS.
Nombre de chambres: 4
Année de construction: 2000
Piscine: Oui
Surface du terrain: 1200 m2
Nature du chauffage: électricité

Diagnostic de performance énergétique

Classe énergie (kWhEP/m².an)

62

Gaz à effet de serre (kg éqCO2/m².an)

2

Contact

N'oubliez pas de préciser, que vous avez lu cette annonce sur Var-immo.net (un site de Ouest-Var.net)

Iad France
Helene Queste Angeli
07 86 11 00 14
Barème d'honoraires
*: Surface indiquée par le propriétaire sous toutes réserves en l'absence d'attestation de surface.
Annonce créée le 14 mars 2026. Cette annonce a été consultée 0 fois

Contactez l'annonceur

Merci d'indiquer au moins un numéro de téléphone*
Saisissez le code ci-dessus

*: Les champs marqués d'une asterixe sont obligatoire.

Vente immobilier, maisons, villas, appartements et terrains