Immobilier Ouest Var
Var-Immo > Toulon > Maison > SFN-1874822

960 000 € Maison T6 Toulon

Pièces: 6
Surface: 186 m2 *
Référence: SFN-1874822
iad France - Sarah Durand vous propose: Toulon Cap Brun – Maison familiale au cOEur du calme et de la verdure

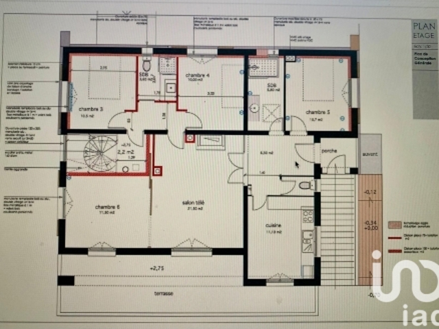
Dans un environnement recherché, à deux pas des plages de Méjean, des écoles et des commerces, cette belle maison de 185 m² offre espace et sérénité pour toute la famille.
Édifiée sur une parcelle verdoyante de plus de 900 m², elle bénéficie d’une luminosité traversante et d’une double exposition.

Elle se compose de 5 chambres (possibilité 6) dont 2 en rez-de-chaussée, permettant diverses configurations, avec la possibilité de créer un logement indépendant.
Les extérieurs invitent à la détente avec deux grandes terrasses, un terrain piscinable, un garage fermé et plusieurs stationnements privatifs.

Un bien rare, alliant calme, confort et élégance, dans l’un des secteurs les plus prisés de Toulon.

Je suis ouverte à l'inter-agence.

Honoraires d'agence à la charge du vendeur.
Information d'affichage énergétique sur ce bien : classe ENERGIE D indice 235 et classe CLIMAT B indice 7. Les informations sur les risques auxquels ce bien est exposé, y compris l'obligation légale de débroussaillement, sont disponibles sur le site Géorisques :
La présente annonce immobilière a été rédigée sous la responsabilité éditoriale de Mme Sarah Durand mandataire indépendant en immobilier (sans détention de fonds), agent commercial de la SAS I@D France immatriculé au RSAC de TOULON sous le numéro 882412786, titulaire de la carte de démarchage immobilier pour le compte de la société I@D France SAS.
Année de construction: 1963
Nature du chauffage: électricité

Diagnostic de performance énergétique

Classe énergie (kWhEP/m².an)

235

Gaz à effet de serre (kg éqCO2/m².an)

7

Contact

N'oubliez pas de préciser, que vous avez lu cette annonce sur Var-immo.net (un site de Ouest-Var.net)

Iad France
Sarah Durand
06 76 60 68 83
*: Surface indiquée par le propriétaire sous toutes réserves en l'absence d'attestation de surface.
Annonce créée le 24 octobre 2025. Cette annonce a été consultée 0 fois

Contactez l'annonceur

Merci d'indiquer au moins un numéro de téléphone*
Saisissez le code ci-dessus

*: Les champs marqués d'une asterixe sont obligatoire.