Immobilier Ouest Var
Var-Immo > Toulon > Maison > SFN-1989950

950 000 € Maison T8 Toulon

Pièces: 8
Surface: 275 m2 *
Référence: SFN-1989950
iad France - Murielle Orsini vous propose: Toulon Faron – Propriété de caractère avec vue rade et fort potentiel

Sur les hauteurs de Toulon, dans le secteur recherché du Faron, cette propriété bénéficie d’un emplacement particulièrement rare : un environnement dominant avec vue dégagée sur la rade, tout en restant à proximité immédiate du quartier Claret, des commodités et des transports accessibles à pied.

Édifiée dans les années 50, cette maison à l’architecture avant-gardiste pour son époque (toit plat, lignes modernes) développe une surface de 275 m2 au sol. Construite avec des matériaux traditionnels, cette propriété se distingue par son style affirmé, ses volumes généreux et son potentiel de transformation.,Les espaces de vie, baignés de lumière, s’ouvrent sur une vue dominante sur Toulon et sa rade.


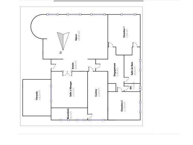
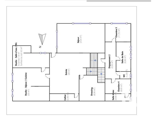
Distribution :
•Plusieurs espaces de vie répartis sur deux niveaux
•4 chambres + studio indépendant
•2 salles de bain + salle d’eau
•Cuisine, salle à manger et séjour spacieux
•Véranda et annexes (cellier, buanderie…)


Extérieurs & accès
•Double garage (de 18 m2 chacun)
•Jardin aux essences méditerranéennes, en grande partie plat
•Espaces extérieurs variés permettant de profiter des lieux à tout moment de la journée
•Ascenseur desservant les niveaux
•Cabanon de jardin
•Accès aisé


Ses atouts :
✔ Architecture singulière
✔ Vue rade et faron
✔ Emplacement Faron avec vie à pied possible
✔ Volumes et configuration modulable
✔ Double habitation d’origine (fort potentiel)


À prévoir : Des travaux de rénovation sont à envisager pour moderniser l’ensemble et valoriser pleinement le bien.


Mon avis : De nombreux atouts pour cette maison à l’architecture singulière et aux volumes généreux. Pensée à l’origine comme une double habitation, elle offre aujourd’hui de nombreuses possibilités d’aménagement dans un secteur très recherché.


Ouvert à la collaboration inter-agences

Honoraires d'agence à la charge du vendeur.
Information d'affichage énergétique sur ce bien : classe ENERGIE E indice 326 et classe CLIMAT C indice 12. Les informations sur les risques auxquels ce bien est exposé, y compris l'obligation légale de débroussaillement, sont disponibles sur le site Géorisques :
La présente annonce immobilière a été rédigée sous la responsabilité éditoriale de Mme Murielle Orsini mandataire indépendant en immobilier (sans détention de fonds), agent commercial de la SAS I@D France immatriculé au RSAC de TOULON sous le numéro 534154026, titulaire de la carte de démarchage immobilier pour le compte de la société I@D France SAS.
Nombre de chambres: 4
Année de construction: 1955
Surface du terrain: 1300 m2
Nature du chauffage: électricité

Diagnostic de performance énergétique

Classe énergie (kWhEP/m².an)

326

Gaz à effet de serre (kg éqCO2/m².an)

12

Contact

N'oubliez pas de préciser, que vous avez lu cette annonce sur Var-immo.net (un site de Ouest-Var.net)

Iad France
Murielle Orsini
06 08 34 78 50
Barème d'honoraires
*: Surface indiquée par le propriétaire sous toutes réserves en l'absence d'attestation de surface.
Annonce créée le 09 avril 2026. Cette annonce a été consultée 2 fois

Contactez l'annonceur

Merci d'indiquer au moins un numéro de téléphone*
Saisissez le code ci-dessus

*: Les champs marqués d'une asterixe sont obligatoire.