Immobilier Ouest Var
Var-Immo > Toulon > Appartement > SFN-1879389

95 000 € Studio Toulon

Pièces: 1
Surface: 34 m2 *
Référence: SFN-1879389
iad France - Guillaume Lefevre vous propose: Appartement avec fort potentiel à rénover - Emplacement Idéal à Toulon

Vous recherchez un pied-à-terre à rénover selon vos goûts au cOEur de Toulon? Ne cherchez plus, cet appartement de 34m² situé au 4ème étage d'une résidence de 5 niveaux, à quelques pas des Halles Gourmandes et de la Place Puget, est l'opportunité qu'il vous faut.

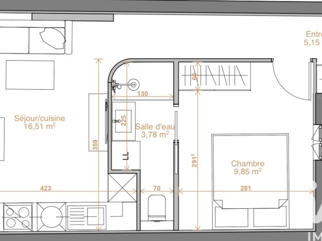
Cet appartement à rénover est idéalement agencé avec une pièce principale de 21m² pouvant accueillir un salon confortable, une cuisine indépendante de 7.6m² offrant la possibilité d'aménager un espace repas, ainsi qu'une salle d'eau de 2.88m². Le bien comprend également une entrée pratique pour accueillir vos convives.

Une architecte a travaillé sur l'appartement et recommande de retravailler les espaces en créant une chambre de presque 10m², une salle d'eau d'environ 4m² et un salon séjour de 16,50m².

Bien que nécessitant des travaux, cet appartement offre de belles perspectives d'aménagement pour créer un espace de vie moderne et fonctionnel à votre image.

L'emplacement de cet appartement est un véritable atout, à proximité immédiate des commerces, marchés et lieux de vie animés de Toulon. Vous pourrez profiter des Halles Gourmandes pour vos achats frais à seulement 50m de chez vous, tandis que la charmante Place Puget se trouve à 80m, offrant un cadre idéal pour flâner et profiter des terrasses ensoleillées.

Bien que l'appartement ne dispose pas actuellement de prestations particulières en termes de confort, de sécurité ou d'espaces extérieurs, sa localisation et son potentiel de rénovation en font une belle opportunité d'investissement pour les amateurs de travaux et de décoration d'intérieur.

Si vous avez l'OEil pour révéler le potentiel caché de ce bien et en faire un véritable cocon urbain, ne manquez pas l'occasion de visiter cet appartement à rénover à Toulon. Une visite s'impose pour apprécier pleinement son potentiel et son emplacement privilégié.

La presente annonce immobiliere vise 2 lots situés dans une copropriété de 20 lots au total et ne faisant l'objet d'aucune procédure en cours citée à l'article L. 721-1 du code de la construction et de l'habitation. Montant moyen mensuel de charges déclaré par le vendeur : 45€ par mois (soit 540 € annuel). Honoraires d'agence à la charge du vendeur.
Information d'affichage énergétique sur ce bien : classe ENERGIE D indice 187 et classe CLIMAT A indice 5. Les informations sur les risques auxquels ce bien est exposé, y compris l'obligation légale de débroussaillement, sont disponibles sur le site Géorisques :
La présente annonce immobilière a été rédigée sous la responsabilité éditoriale de M Guillaume Lefevre mandataire indépendant en immobilier (sans détention de fonds), agent commercial de la SAS I@D France immatriculé au RSAC de Toulon sous le numéro 517617262, titulaire de la carte de démarchage immobilier pour le compte de la société I@D France SAS.
Etage: 4
Nombre d'étages: 5

Diagnostic de performance énergétique

Classe énergie (kWhEP/m².an)

187

Gaz à effet de serre (kg éqCO2/m².an)

5

Contact

N'oubliez pas de préciser, que vous avez lu cette annonce sur Var-immo.net (un site de Ouest-Var.net)

Iad France
Guillaume Lefevre
06 82 10 61 24
*: Surface indiquée par le propriétaire sous toutes réserves en l'absence d'attestation de surface.
Annonce créée le 02 novembre 2025. Cette annonce a été consultée 6 fois

Contactez l'annonceur

Merci d'indiquer au moins un numéro de téléphone*
Saisissez le code ci-dessus

*: Les champs marqués d'une asterixe sont obligatoire.