Immobilier Ouest Var
Var-Immo > Bandol > Terrain > SFN-1925562

450 000 € Terrain Bandol

Référence: SFN-1925562
iad France - Isabelle Dealessandri vous propose: RARE A LA VENTE - BANDOL - SECTEUR RECHERCHE bas de l ESCOURCHE - TERRAIN CONSTRUCTIBLE de 444 m² - TOUTE PROPRIETE - EMPRISE 50% - PISCINABLE - GRAND GARAGE POSSIBLE - à 900m du PORT

FRAIS DE NOTAIRE OFFERT EN AVRIL 2026

Belle opportunité à saisir pour ce terrain plat, exposé plein sud et piscinable de 444 m² en zone UB (50% d emprise en R+1). Secteur très recherché à 15 minutes à pied de la plage de Renécros ou du port.

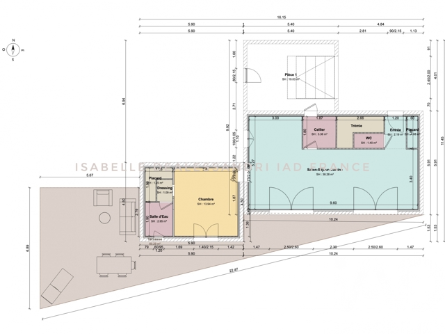
Permis de construire déposé pour une élégante villa individuelle de 90m², suite parentale de plain pied, 2 chambres en R+1, terrasse, grand garage de 20 m2 et piscine.

LIBRE CONSTRUCTEUR

Dossier complet avec prévisionnel pour le projet global possible.

Je vous renseigne avec plaisir, contactez moi !

Honoraires d'agence à la charge du vendeur.
Bien non soumis au DPE. Les informations sur les risques auxquels ce bien est exposé, y compris l'obligation légale de débroussaillement, sont disponibles sur le site Géorisques :
La présente annonce immobilière a été rédigée sous la responsabilité éditoriale de Mme Isabelle Dealessandri mandataire indépendant en immobilier (sans détention de fonds), agent commercial de la SAS I@D France immatriculé au RSAC de TOULON sous le numéro 848000501, titulaire de la carte de démarchage immobilier pour le compte de la société I@D France SAS.
Surface du terrain: 444 m2

Contact

N'oubliez pas de préciser, que vous avez lu cette annonce sur Var-immo.net (un site de Ouest-Var.net)

Iad France
Isabelle Dealessandri
06 40 56 04 33
Barème d'honoraires
*: Surface indiquée par le propriétaire sous toutes réserves en l'absence d'attestation de surface.
Annonce créée le 17 janvier 2026. Cette annonce a été consultée 5 fois

Contactez l'annonceur

Merci d'indiquer au moins un numéro de téléphone*
Saisissez le code ci-dessus

*: Les champs marqués d'une asterixe sont obligatoire.