Appartement T3 Toulon

98 000 €
Pièces: 3
Surface: 55 m2 *
Référence: SFN-1900153
iad France - Emma Colin vous propose: TOULON - ST ROCH - IDEAL INVESTISSEUR

Appartement T3 à repenser entièrement, belle rentabilité à la clé.
Le bien se situe dans un quartier dynamique, proche de l'arsenal, de l'hyper centre de Toulon et des axes routiers et autoroutiers de la ville.

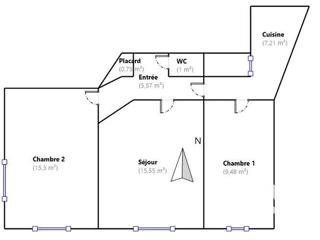
Il est situé au 2ème étage sans ascenseur et se compose comme suit :
- Une entrée avec placard
- Deux chambres lumineuses
- Un salon
- Un coin cuisine et un espace point d'eau
- Un wc séparé

Le bien possède aussi une cave en sous sol.

Concernant les fissures visibles sur les photos : il s’agit de traces anciennes liées à des travaux réalisés il y a plusieurs années par un copropriétaire du premier étage, qui avait supprimé un mur porteur dans son logement. Cet incident a depuis été entièrement traité : une expertise structurelle a été menée, des travaux de consolidation ont été effectués dans la copropriété, et le dossier est aujourd’hui totalement clôturé. Les fissures présentes dans l’appartement sont désormais stabilisées, ne présentent aucun mouvement et n’appellent aucune intervention structurelle.

Chers collègues mandataires et agences, je suis ouverte à l'inter cabinet.

La presente annonce immobiliere vise 2 lots situés dans une copropriété de 18 lots au total et ne faisant l'objet d'aucune procédure en cours citée à l'article L. 721-1 du code de la construction et de l'habitation. Montant moyen mensuel de charges déclaré par le vendeur : 54.67€ par mois (soit 656 € annuel). Honoraires d'agence à la charge du vendeur.
Bien non soumis au DPE. Les informations sur les risques auxquels ce bien est exposé, y compris l'obligation légale de débroussaillement, sont disponibles sur le site Géorisques :
La présente annonce immobilière a été rédigée sous la responsabilité éditoriale de Mme Emma Colin mandataire indépendant en immobilier (sans détention de fonds), agent commercial de la SAS I@D France immatriculé au RSAC de TOULON sous le numéro 891679110, titulaire de la carte de démarchage immobilier pour le compte de la société I@D France SAS.
Nombre de chambres: 2
Nombre d'étages: 3
Annexes: Cave.

Contact

N'oubliez pas de préciser, que vous avez lu cette annonce sur Var-immo.net (un site de Ouest-Var.net)

Iad France
Emma Colin
06 27 37 38 37

Contactez l'annonceur

Saisissez le code ci-dessus

*: Les champs marqués d'une asterixe sont obligatoire.

*: Surface indiquée par le propriétaire sous toutes réserves en l'absence d'attestation de surface.
Annonce créée le 04 décembre 2025. Cette annonce a été consultée 4 fois