Appartement T4 Saint Raphaël

469 000 €
Pièces: 4
Surface: 83 m2 *
Référence: SFN-1670221-3
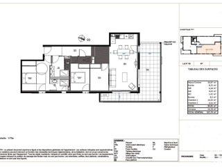
iad France - Céline Inaudi (06 58 44 63 26) vous propose : A Saint-Raphaël, découvrez ce magnifique appartement de 4 pièces de 83m² environ, situé au 2ème et dernier étage d'une résidence moderne avec ascenseur.

Composé d'une pièce de vie de 31m² environ ouvrant sur un balcon de 25m² environ exposée sud et ouest.
Deux chambres avec placards intégrés, dont une en suite avec sa salle d'eau.
Un bureau, une salle d'eau et un WC indépendant complète ce bien.

Fenêtres et portes-fenêtres avec double vitrage isolant.
Parking sécurisé en sous-sol
Spacieux, confortables et lumineux, les appartements sont équipés de matériaux de qualité et offrent des prestations de standing.

Idéalement située à mi-chemin entre le centre-ville, les plages et les commerces de première nécessité.

- Marie Blachère à 95 mètres
- Auchan - Casino - Aldi - Super U : à moins de 500mètres
- Ecoles et Lycées à moins de 10min à pied
Bien desservi par les transports en commun et à seulement 2 km de la gare de St-Raphaël.

Saint-Raphaël offre avec vues imprenables sur le massif de l’Esterel. Vivant au rythme des marchés provençaux, la ville
propose un éventail d’activités nautiques et terrestres pour les
amoureux de sports : plongée, ski nautique, randonnées, etc... ainsi que 3 magnifiques golfs.

Normes R2020
Eligible au pinel
Appartement témoin prêt pour les visites

Dernières opportunités à saisir dans cette résidence.
Contactez-moi pour en savoir plus.

Honoraires d’agence à la charge du vendeur. Bien non soumis au DPE. Les informations sur les risques auxquels ce bien est exposé sont disponibles sur le site Géorisques : La présente annonce immobilière a été rédigée sous la responsabilité éditoriale de Mlle Céline Inaudi EI (ID 85801), mandataire indépendant en immobilier (sans détention de fonds), agent commercial de la SAS I@D France immatriculé au RSAC de Avignon sous le numéro 532514403, titulaire de la carte de démarchage immobilier pour le compte de la société I@D France SAS.
Retrouvez tous nos biens sur notre site internet.
Nombre de chambres: 2
Etage: 1
Nombre d'étages: 2
Année de construction: 2024
Annexes: Parking, Cave.

Contact

N'oubliez pas de préciser, que vous avez lu cette annonce sur Var-immo.net (un site de Ouest-Var.net)

Iad France
Céline Inaudi
06 58 44 63 26

Contactez l'annonceur

Saisissez le code ci-dessus

*: Les champs marqués d'une asterixe sont obligatoire.

*: Surface indiquée par le propriétaire sous toutes réserves en l'absence d'attestation de surface.