Appartement T2 Cogolin

280 000 €
Pièces: 2
Surface: 46 m2 *
Référence: SFN-1720515-1
iad France - Pierre Magerand (06 37 21 92 42) vous propose : Appartement T2 avec balcon à Cogolin.

Située chemin des Trémouries, au cOEur d’un environnement résidentiel calme et verdoyant, la résidence contemporaine Terra Mare conjugue élégance provençale et confort moderne. À proximité immédiate du village, des commerces, des écoles et des commodités du Golfe de Saint-Tropez, cette adresse offre un cadre de vie paisible et privilégié. La résidence dispose également d’une magnifique piscine. Disponible 2027.

Un appartement raffiné :
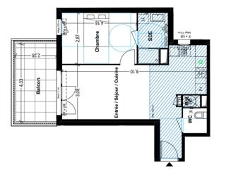
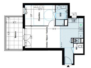
Situé au 1 er étage, cet appartement T2 de 46 m² environ habitables se prolonge par un balcon de 10 m² environ.

- Séjour/cuisine de 28 m² environ .
- Une chambre confortable.
- Salle d’eau moderne.
- Annexes incluses : Deux parkings.

De belles prestations :
- Chauffage et climatisation par pompe à chaleur collective, thermostat dans chaque pièce.
- Résidence entièrement sécurisée : vidéophone, accès contrôlé, parkings en sous-sol.
- Piscine au sein de la résidence, accessible aux résidents.

L’art de vivre à Cogolin :
- À quelques minutes à pied du village et des commerces.
- Entre terre et mer, au cOEur du Golfe de Saint-Tropez.
- À proximité des plages, de Port-Cogolin et des axes principaux.
- Environnement calme, ensoleillé et parfaitement desservi.

N’hésitez pas à me contacter pour plus d’informations ou pour un accompagnement sur mesure.

Honoraires d’agence à la charge du vendeur. Bien non soumis au DPE. Les informations sur les risques auxquels ce bien est exposé sont disponibles sur le site Géorisques : La présente annonce immobilière a été rédigée sous la responsabilité éditoriale de M. Pierre Magerand EI (ID 86098), mandataire indépendant en immobilier (sans détention de fonds), agent commercial de la SAS I@D France immatriculé au RSAC de Cusset sous le numéro 938729175, titulaire de la carte de démarchage immobilier pour le compte de la société I@D France SAS.
Retrouvez tous nos biens sur notre site internet.
Nombre de chambres: 1
Etage: 1
Nombre d'étages: 2
Année de construction: 2027
Balcon: Oui
Annexes: Parking.

Contact

N'oubliez pas de préciser, que vous avez lu cette annonce sur Var-immo.net (un site de Ouest-Var.net)

Iad France
Pierre Magerand
06 37 21 92 42

Contactez l'annonceur

Saisissez le code ci-dessus

*: Les champs marqués d'une asterixe sont obligatoire.

*: Surface indiquée par le propriétaire sous toutes réserves en l'absence d'attestation de surface.
Annonce créée le 17 novembre 2025. Cette annonce a été consultée 0 fois