Appartement T3 Le Lavandou

410 000 €
Pièces: 3
Surface: 66 m2 *
Référence: SFN-1960152
iad France - Marylene Chassagne vous propose: Appartement de standing avec grande terrasse et stationnement couvert – Le Lavandou - 66 m² ( surface au sol 83 m²)

Situé au sein d’une résidence récente et sécurisée de 2015, cet appartement de 66 m² se trouve au 3ᵉ étage avec ascenseur et bénéficie d’un emplacement privilégié dans un quartier recherché du Lavandou, à environ 7 minutes à pied des plages et à proximité immédiate des commerces et commodités.

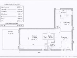
Description

Cet appartement traversant propose un espace de vie lumineux composé de :
- Un séjour avec cuisine ouverte de 26 m² (exposition SUD)
- Deux chambres (10,3 et 11,5 m²)
- Deux salles d’eau
- Un WC indépendant
- Un cellier (2,7 m²)

La pièce de vie s’ouvre sur une spacieuse terrasse d’environ 30 m² exposée plein sud, idéale pour profiter pleinement du climat méditerranéen.

Une place de stationnement couverte privative complète ce bien.

Les atouts

✔ Résidence récente (2015)
✔ Appartement traversant et lumineux
✔ Surface habitable : 66 m²
✔ Grande terrasse d’environ 30 m² exposée plein sud
✔ Ascenseur
✔ Stationnement couvert privatif
✔ Résidence sécurisée (digicode, interphone, espaces clos)
✔ Jardin paysager au sein de la copropriété
✔ Appartement en excellent état – aucun travaux à prévoir
✔ Budget copropriété stable avec 'conseil syndical actif'

Informations complémentaires

- Charges de copropriété : environ 100 € / mois
- Taxe foncière : 1 380 €

Localisation

Situé dans un secteur recherché du Lavandou, cet appartement permet de rejoindre facilement les plages et le centre-ville à pied, tout en profitant d’un environnement résidentiel calme et agréable.

Un bien idéal pour une résidence principale, secondaire ou un investissement sur la Côte d’Azur.

Nombre de chambres: 2
Etage: 3
Nombre d'étages: 4
Année de construction: 2015
Nature du chauffage: électricité
Type de chauffage: individuel

Diagnostic de performance énergétique

Classe énergie (kWhEP/m².an)

34

Gaz à effet de serre (kg éqCO2/m².an)

1

Contact

N'oubliez pas de préciser, que vous avez lu cette annonce sur Var-immo.net (un site de Ouest-Var.net)

Iad France
Marylene Chassagne
06 60 38 32 06

Contactez l'annonceur

Saisissez le code ci-dessus

*: Les champs marqués d'une asterixe sont obligatoire.

*: Surface indiquée par le propriétaire sous toutes réserves en l'absence d'attestation de surface.
Annonce créée le 04 mars 2026. Cette annonce a été consultée 2 fois