Appartement T5 Saint Raphaël

499 000 €
Pièces: 5
Surface: 131 m2 *
Référence: SFN-2007040
iad France - Christophe Cuypers vous propose: Valescure – Duplex d’exception au cOEur d’un environnement résidentiel privilégié

Idéalement situé au pied des parcours de golf de Valescure et à seulement 600 mètres des commerces de proximité (Spar, boucherie, poissonnerie, fromager, fleuriste, pharmacie, salon de coiffure…), ce superbe duplex traversant et climatisé occupe le premier et dernier étage d’une résidence intimiste nichée dans un cadre calme et verdoyant.

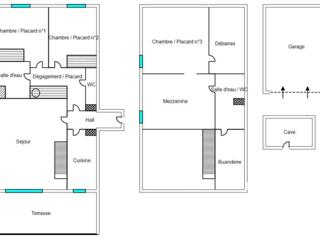
Développant une surface de 105 m² loi Carrez, ce bien séduit immédiatement par ses volumes, sa luminosité et son atmosphère élégante.

L’entrée ouvre sur un vaste séjour baigné de lumière, sublimé par une remarquable hauteur sous plafond et de magnifiques poutres apparentes, offrant un caractère chaleureux et raffiné.
Cet espace de vie se prolonge naturellement vers une terrasse plein sud de 14 m², idéale pour profiter pleinement du climat méditerranéen.

La cuisine entièrement équipée, actuellement indépendante, peut aisément être ouverte sur le séjour afin de créer une pièce de vie contemporaine et conviviale.

Le premier niveau accueille également deux chambres avec rangements intégrés, une salle d’eau ainsi qu’un WC indépendant.

À l’étage, un bel espace bureau en mezzanine distribue une troisième chambre, une buanderie, un cellier ainsi qu’une salle de bains avec WC, offrant une organisation idéale pour une résidence principale comme secondaire.

Un garage fermé de 20 m² complète ce bien. Électrifié et doté d’une porte motorisée, il permet notamment l’utilisation d’une borne de recharge pour véhicule électrique dans des conditions optimales. Une cave vient également parfaire les prestations.

Les charges de copropriété comprennent notamment la consommation d’eau de l’appartement ainsi que l’électricité des garages, incluant la recharge d’un véhicule électrique.

Possibilité d’acquérir un second garage en supplément.


Un bien rare sur le secteur de Valescure, alliant emplacement recherché, volumes généreux et qualité de vie au cOEur d’un environnement naturel prisé.

Dossier complet et visite sur demande.

La presente annonce immobiliere vise 3 lots situés dans une copropriété de 184 lots au total et ne faisant l'objet d'aucune procédure en cours citée à l'article L. 721-1 du code de la construction et de l'habitation. Montant moyen mensuel de charges déclaré par le vendeur : 208.33€ par mois (soit 2500 € annuel). Honoraires d'agence à la charge du vendeur.
Information d'affichage énergétique sur ce bien : classe ENERGIE C indice 170 et classe CLIMAT A indice 5. Les informations sur les risques auxquels ce bien est exposé, y compris l'obligation légale de débroussaillement, sont disponibles sur le site Géorisques :
La présente annonce immobilière a été rédigée sous la responsabilité éditoriale de M Christophe Cuypers mandataire indépendant en immobilier (sans détention de fonds), agent commercial de la SAS I@D France immatriculé au RSAC de fréjus sous le numéro 530797687, titulaire de la carte de démarchage immobilier pour le compte de la société I@D France SAS.
Nombre de chambres: 3
Etage: 1
Année de construction: 1983
Nature du chauffage: électricité
Type de chauffage: individuel
Annexes: Cave.

Diagnostic de performance énergétique

Classe énergie (kWhEP/m².an)

170

Gaz à effet de serre (kg éqCO2/m².an)

5

Contact

N'oubliez pas de préciser, que vous avez lu cette annonce sur Var-immo.net (un site de Ouest-Var.net)

Iad France
Christophe Cuypers
06 48 27 57 47

Contactez l'annonceur

Saisissez le code ci-dessus

*: Les champs marqués d'une asterixe sont obligatoire.

*: Surface indiquée par le propriétaire sous toutes réserves en l'absence d'attestation de surface.
Annonce créée le 25 avril 2026. Cette annonce a été consultée 0 fois