Appartement T5 Sanary

750 000 €
Pièces: 5
Surface: 93 m2 *
Référence: SFN-1991237
iad France - Alexandre Padel vous propose: Appartement au premier et dernier étage d’une bâtisse de charme, à deux pas du port

À la frontière entre les Lônes et Sanary, dans un secteur particulièrement recherché, à quelques minutes à pied du port et de ses ruelles animées, cet appartement de 93m² occupe l’intégralité du premier et dernier étage d’une jolie bâtisse nichée dans un environnement verdoyant.

Implanté dans un cadre préservé, à l’abri des regards, ce bien offre un équilibre rare entre tranquillité, intimité et proximité du centre. L’accès à la copropriété se fait par un espace arboré et soigneusement entretenu, alimenté par un puits, qui confère immédiatement une atmosphère paisible.

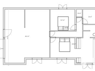
L’appartement développe un séjour lumineux d’environ 50m², bénéficiant d’une triple exposition et de volumes ouverts. La cuisine semi-ouverte, moderne et équipée, s’intègre naturellement à l’espace de vie.

La partie nuit se compose de trois chambres, dont une avec salle d’eau privative et WC. Une seconde salle de bain complète l’ensemble. L’agencement privilégie la circulation, la luminosité et le confort au quotidien.

Les prestations proposées assurent un bon niveau de confort :
- Climatisation réversible
- Volets roulants motorisés
- Système de vidéosurveillance
- Stationnements pré-équipés pour bornes de recharge électrique
- Espaces dédiés aux vélos et deux-roues

Ce bien se distingue par son environnement calme et arboré, tout en restant à proximité immédiate du coeur de ville de Sanary.


La presente annonce immobiliere vise 1 lot situé dans une copropriété de 6 lots au total et ne faisant l'objet d'aucune procédure en cours citée à l'article L. 721-1 du code de la construction et de l'habitation. Montant moyen mensuel de charges déclaré par le vendeur : 90€ par mois (soit 1080 € annuel). Honoraires d'agence à la charge du vendeur.
Information d'affichage énergétique sur ce bien : classe ENERGIE B indice 100 et classe CLIMAT A indice 2. Les informations sur les risques auxquels ce bien est exposé, y compris l'obligation légale de débroussaillement, sont disponibles sur le site Géorisques :
La présente annonce immobilière a été rédigée sous la responsabilité éditoriale de M Alexandre Padel mandataire indépendant en immobilier (sans détention de fonds), agent commercial de la SAS I@D France immatriculé au RSAC de TOULON sous le numéro 808767743, titulaire de la carte de démarchage immobilier pour le compte de la société I@D France SAS.
Nombre de chambres: 3
Etage: 1
Nombre d'étages: 1
Balcon: Oui
Cuisine équipée: Oui
Nature du chauffage: électricité
Type de chauffage: individuel

Diagnostic de performance énergétique

Classe énergie (kWhEP/m².an)

100

Gaz à effet de serre (kg éqCO2/m².an)

2

Contact

N'oubliez pas de préciser, que vous avez lu cette annonce sur Var-immo.net (un site de Ouest-Var.net)

Iad France
Alexandre Padel
06 18 87 36 00

Contactez l'annonceur

Saisissez le code ci-dessus

*: Les champs marqués d'une asterixe sont obligatoire.

*: Surface indiquée par le propriétaire sous toutes réserves en l'absence d'attestation de surface.
Annonce créée le 08 avril 2026. Cette annonce a été consultée 23 fois