Maison T4 Fayence

374 400 €
Pièces: 4
Surface: 84 m2 *
Référence: SFN-1930486-2
iad France - Inès Querry (06 40 72 71 71) vous propose : Le Clos du Banégon -Lot 2 -Villa neuve avec jardin – Domaine confidentiel à Fayence



Sur les coteaux sud du pittoresque village de Fayence, au cOEur d’un environnement résidentiel paisible et recherché, découvrez cette villa neuve mitoyenne, proposée en VEFA et construite selon la norme RT 2012, garantissant confort, performance énergétique et qualité de vie.



Cette maison fait partie d’un domaine intimiste composé de seulement cinq villas, idéalement situé à proximité des commerces, des écoles et du centre du village.



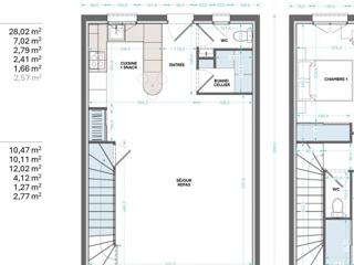
Développant environ 84,88 m² environ de surface de plancher, elle offre au rez-de-chaussée un bel espace de vie lumineux de plus de 28 m² environ, une cuisine ouverte, une entrée, un cellier/buanderie et un WC.



À l’étage, l’espace nuit se compose de trois chambres confortables, d’une salle de bain, d’un WC indépendant et d’un dégagement.



Implantée sur une parcelle d’environ 140 m² environ, la maison bénéficie d’un jardin privatif de près de 50 m² environ, idéal pour profiter pleinement du soleil et du climat provençal.



Une adresse idéale pour savourer l’art de vivre de l’arrière-pays varois, entre nature, village et douceur de vivre.



Frais de notaire réduits – idéal résidence principale, pied-à-terre ou investissement.

Honoraires d’agence à la charge du vendeur. Bien non soumis au DPE. Les informations sur les risques auxquels ce bien est exposé sont disponibles sur le site Géorisques : La présente annonce immobilière a été rédigée sous la responsabilité éditoriale de Mlle Inès Querry EI (ID 85184), mandataire indépendant en immobilier (sans détention de fonds), agent commercial de la SAS I@D France immatriculé au RSAC de Draguignan sous le numéro 419704796, titulaire de la carte de démarchage immobilier pour le compte de la société I@D France SAS.
Retrouvez tous nos biens sur notre site internet.
Nombre de chambres: 3
Année de construction: 2026
Surface du terrain: 140 m2
Nature du chauffage: électricité

Contact

N'oubliez pas de préciser, que vous avez lu cette annonce sur Var-immo.net (un site de Ouest-Var.net)

Iad France
Inès Querry
06 40 72 71 71

Contactez l'annonceur

Saisissez le code ci-dessus

*: Les champs marqués d'une asterixe sont obligatoire.

*: Surface indiquée par le propriétaire sous toutes réserves en l'absence d'attestation de surface.
Annonce créée le 06 mars 2026. Cette annonce a été consultée 0 fois