Maison T6 Toulon

430 000 €
Pièces: 6
Surface: 115 m2 *
Référence: SFN-1986544
iad France - Marjorie Ynesta vous propose: Maison à Toulon Pont de Suve - Idéal pour une Grande Famille

Cette charmante maison, sur une grande parcelle de 900 m2, offre un potentiel incroyable pour une rénovation complète et sur-mesure. Sa superficie de 115 m² avec sa véranda (+35m2) totalisant 150m2 est idéale pour une grande famille à la recherche de caractère et de possibilités d'aménagement.

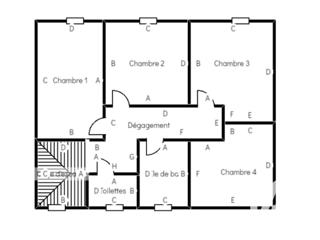
Au rez-de-chaussée, vous découvrirez un vaste séjour de 33,5 m², une véranda de 33 m2, une cuisine séparée de 9 m², un WC indépendant et une chambre de 17 m2. L'espace de vie principal est convivial et offre de multiples possibilités d'agencement pour créer une atmosphère chaleureuse et accueillante.

À l'étage, vous trouverez quatre autres chambres spacieuses, offrant un espace privé confortable à chaque membre de la famille. Un WC et une salle d'eau complètent cet étage.

À l'extérieur, un jardin arboré et clôturé offre un espace de détente agréable pour profiter des journées ensoleillées. De plus, la maison dispose d'un garage (33 m2), de plusieurs ateliers (16m2) et de places de parking pour faciliter le stationnement de plusieurs véhicules.

Située dans un quartier résidentiel paisible, proche de la piste cyclable, de la nouvelle gare et des commodités, cette propriété offre un cadre de vie idéal pour les amateurs de travaux et de personnalisation. Venez laisser libre cours à votre imagination pour créer la maison de vos rêves.

À rénover (toiture et façade en bon état), cette maison offre un potentiel unique pour créer un espace de vie sur-mesure, adapté à vos besoins et à vos envies.

Puit / forage dans le jardin

Ne manquez pas cette opportunité de transformer cette maison traditionnelle en un véritable cocon familial. Contactez-nous dès maintenant pour organiser une visite.

Honoraires d'agence à la charge du vendeur.
Information d'affichage énergétique sur ce bien : classe ENERGIE F indice 249 et classe CLIMAT F indice 78. Les informations sur les risques auxquels ce bien est exposé, y compris l'obligation légale de débroussaillement, sont disponibles sur le site Géorisques :
La présente annonce immobilière a été rédigée sous la responsabilité éditoriale de Mme Marjorie Ynesta mandataire indépendant en immobilier (sans détention de fonds), agent commercial de la SAS I@D France immatriculé au RSAC de TOULON sous le numéro 511491581, titulaire de la carte de démarchage immobilier pour le compte de la société I@D France SAS.
Nombre de chambres: 5
Année de construction: 1945
Surface du terrain: 895 m2
Nature du chauffage: fuel

Diagnostic de performance énergétique

Classe énergie (kWhEP/m².an)

249

Gaz à effet de serre (kg éqCO2/m².an)

78

Contact

N'oubliez pas de préciser, que vous avez lu cette annonce sur Var-immo.net (un site de Ouest-Var.net)

Iad France
Marjorie Ynesta
06 25 80 78 32

Contactez l'annonceur

Saisissez le code ci-dessus

*: Les champs marqués d'une asterixe sont obligatoire.

*: Surface indiquée par le propriétaire sous toutes réserves en l'absence d'attestation de surface.
Annonce créée le 29 avril 2026. Cette annonce a été consultée 2 fois