Maison T8 Vidauban

598 000 €
Pièces: 8
Surface: 215 m2 *
Référence: SFN-1925123
iad France - Olivia Mai vous propose: VIDAUBAN : Implantée sur une parcelle de 4 392 m², au sein d’un environnement naturel calme, verdoyant, et sans vis-à-vis. Cette maison de caractère offre de beaux volumes et un potentiel d’aménagement remarquable, pour une surface au sol d’environ 235 m². Vue dégagée sur la plaine et le Massif des Maures.

La configuration de la maison permet de nombreuses possibilités : résidence principale ou secondaire, projet locatif ou création de plusieurs logements, en trois appartements de 3 pièces.

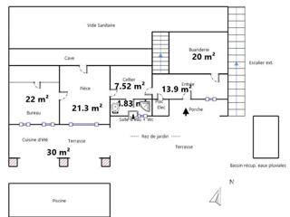
Le rez-de-chaussée propose une entrée spacieuse avec buanderie indépendante, desservant trois pièces communicantes, dont une pièce centrale largement ouverte sur l’extérieur grâce à de grandes baies vitrées. Cet espace donne accès à une terrasse couverte, une cuisine d’été et à la piscine. Une salle d’eau avec WC, une seconde salle d’eau, ainsi que deux caves complètent ce niveau, permettant l’aménagement d’un logement indépendant si souhaité.

À l’étage, accessible par escalier intérieur, se trouvent un hall avec rangements, une cuisine séparée ouvrant sur une terrasse couverte, un double séjour avec insert, prolongé par un espace extérieur abrité. L’espace nuit se compose de trois chambres, d’une salle d’eau avec WC, d’une salle de bains et d’un dressing.

Côté équipements : double vitrage, VMC hygroréglable, climatisation gainable, panneaux solaires avec autoconsommation et revente, chauffe-eau récent, possibilité de stockage par batterie, adoucisseur d’eau, toiture et vide sanitaire isolés, fosse septique conforme.

Les extérieurs aménagés, proposent un cadre de vie agréable avec piscine au sel, multiples terrasses dont certaines couvertes, cuisine d’été, local technique, boulodrome, bassin, cuves de récupération d’eau et murs en restanques structurant le terrain.

Un double abri pour véhicules avec espaces de rangement ainsi qu’un portail électrique viennent compléter l’ensemble.

Des travaux de rénovation sont à prévoir, mais le cadre naturel, le charme du lieu et les nombreuses possibilités d’aménagement font de cette propriété une opportunité rare, idéale pour un projet familial ou d’investissement.

Je suis disponible 7 jours sur 7.

Honoraires d'agence à la charge du vendeur.
Information d'affichage énergétique sur ce bien : classe ENERGIE B indice 111 et classe CLIMAT A indice 4. Les informations sur les risques auxquels ce bien est exposé, y compris l'obligation légale de débroussaillement, sont disponibles sur le site Géorisques :
La présente annonce immobilière a été rédigée sous la responsabilité éditoriale de Mme Olivia Mai mandataire indépendant en immobilier (sans détention de fonds), agent commercial de la SAS I@D France immatriculé au RSAC de nice sous le numéro 839125440, titulaire de la carte de démarchage immobilier pour le compte de la société I@D France SAS.
Nombre de chambres: 4
Année de construction: 1981
Piscine: Oui
Surface du terrain: 4392 m2

Diagnostic de performance énergétique

Classe énergie (kWhEP/m².an)

111

Gaz à effet de serre (kg éqCO2/m².an)

4

Contact

N'oubliez pas de préciser, que vous avez lu cette annonce sur Var-immo.net (un site de Ouest-Var.net)

Iad France
Olivia Mai
06 38 92 22 80

Contactez l'annonceur

Saisissez le code ci-dessus

*: Les champs marqués d'une asterixe sont obligatoire.

*: Surface indiquée par le propriétaire sous toutes réserves en l'absence d'attestation de surface.
Annonce créée le 16 janvier 2026. Cette annonce a été consultée 8 fois