Maison T6 Vidauban

598 000 €
Pièces: 6
Surface: 215 m2 *
Référence: SFN-1995070
iad France - Olivia Mai vous propose: VIDAUBAN – Propriété de caractère avec fort potentiel

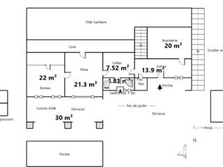
Au cOEur d’un environnement naturel calme et sans vis-à-vis, sur une parcelle de 4 392 m², découvrez cette maison d’environ 235 m² offrant une vue dégagée sur la plaine et le Massif des Maures.

Ses beaux volumes et sa configuration permettent de nombreux projets : résidence principale, secondaire, investissement locatif ou division en plusieurs appartements.

La maison se compose :

D’un rez-de-chaussée modulable avec accès direct à la terrasse, piscine et cuisine d’été (idéal logement indépendant)
D’un étage lumineux avec double séjour, cuisine, 3 chambres, dressing et terrasses

Prestations : climatisation gainable, double vitrage, panneaux solaires, fosse septique conforme, isolation récente.

À l’extérieur : piscine au sel, terrasses, boulodrome, bassin, terrain aménagé en restanques, double abri voiture et portail électrique.

Nombre de chambres: 4
Année de construction: 1981
Piscine: Oui
Surface du terrain: 4392 m2
Annexes: Garage.

Diagnostic de performance énergétique

Classe énergie (kWhEP/m².an)

112

Gaz à effet de serre (kg éqCO2/m².an)

4

Contact

N'oubliez pas de préciser, que vous avez lu cette annonce sur Var-immo.net (un site de Ouest-Var.net)

Iad France
Olivia Mai
06 38 92 22 80

Contactez l'annonceur

Saisissez le code ci-dessus

*: Les champs marqués d'une asterixe sont obligatoire.

*: Surface indiquée par le propriétaire sous toutes réserves en l'absence d'attestation de surface.
Annonce créée le 11 avril 2026. Cette annonce a été consultée 1 fois